Выберите валюту для сайта:
BYN
Подать БЕСПЛАТНО

Продажа торгового помещения на ул. Михася Лынькова, д. 19/2 в Минске, 750000USD, код 997963

1439.9 м2 2 этаж из 2 Фрунзенский район / Масюковщина
2 146 200 р.
Торговый объект
Город Минск
Район Фрунзенский район
Микрорайон Масюковщина
Адрес ул. Михася Лынькова, д. 19/2
Год постройки 1996 г.
Площадь 1439.9 м2
Этаж 2

Описание

Продажа помещений под торговлю, офисы, услуги

г. Минск, ул. М. Лынькова, 19/2

Площади:

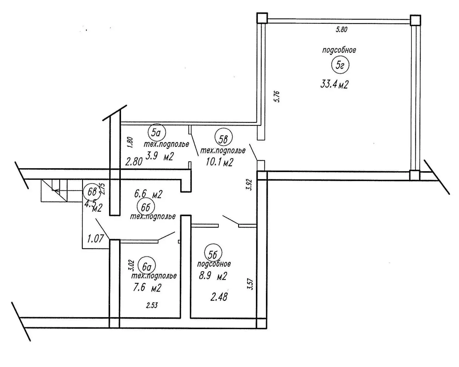
- Помещение тех. этажа - 48 м2
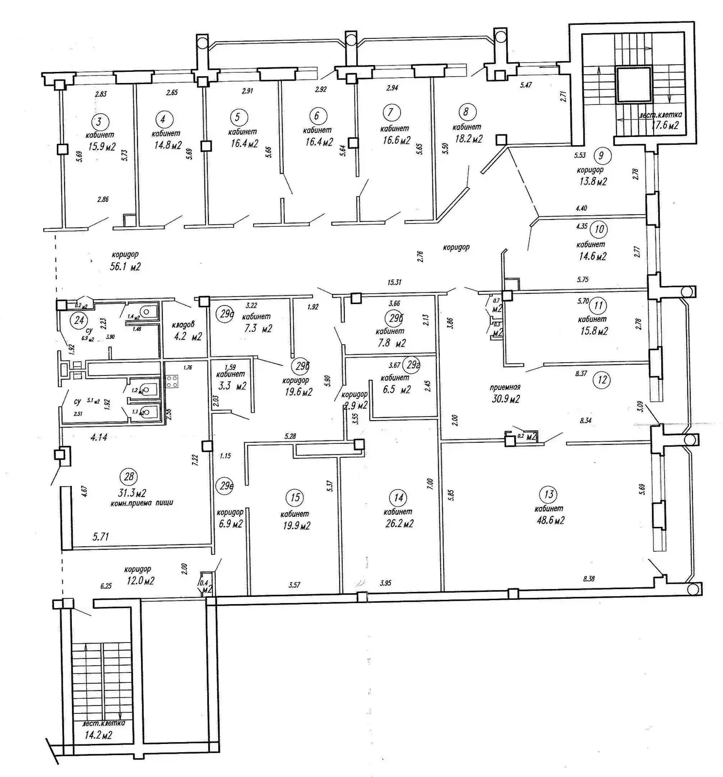
- Помещение административно- производственное на 2 этаже - 505,4 м2
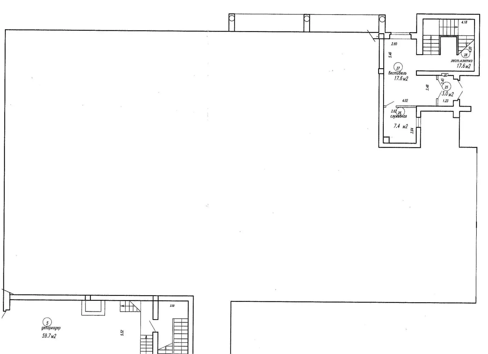
- Помещение торговое, складское на 1, 2 и подвальном этажах - 886,5 м2
Общая площадь помещений в кирпичном 2 -этажном здании 1996 года постройки - 1 439,9 м2.

Покупатель не оплачивает услуги риэлтерской организации!

Характеристики:
• отдельный вход, ремонт, санузлы, кондиционирование (частично);
• парковка возле здания;
• рядом транспортная развязка, выезд на МКАД, остановка общественного транспорта

• рампа.

Ваш агент - Смолка Андрей

№45/3 от 14.07.2025 по 13.07.2026

Код объекта: 997963 Договор с собственником: 45/3 от 2025-07-14 Опубликовано: 29.07.2025 Обновлено: 14.01.2026
0 / 0 / 8
Динамика цен за кв. метрДинамика цен
Похожие объекты
Адрес
Комнат
Площадь
Этаж
Цена за м2
Цена
1440 м2
1 из 2
1 216 р. за м2

Вы просматривали

Торговый объект, 1439.9 м2
Минск, ул. Михася Лынькова, д. 19/2
2 146 200 р.
1 488 р. за м2
Смолка Андрей
Пожалуйста, скажите, что нашли этот объект на Domovita.by
+
Фильтр сохранен