Выберите валюту для сайта:
BYN
Подать БЕСПЛАТНО

Купить торговую точку на ул. Петра Мстиславца, д. 8 в Минске, 199500USD, код 996770

131.5 м2 1 этаж из 11 Первомайский район / Парниковая Восток
655 771 р.
585 353 р.
Торговый объект
Город Минск
Район Первомайский район
Микрорайон Парниковая
Адрес ул. Петра Мстиславца, д. 8
Метро Восток
Время до метро пешком 5 мин.
Время до метро на транспорте 3 мин.
Год постройки 2021 г.
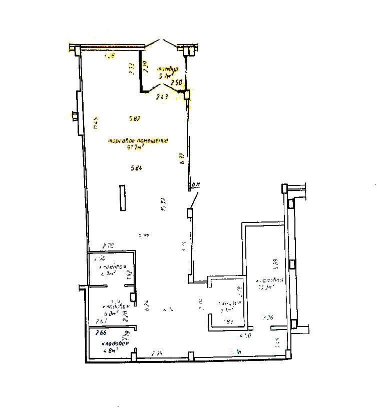
Площадь 131.5 м2
Этаж 1

Описание

Продам торговое помещение в «Маяк Минска»!

Наши главные преимущества:

• Полностью готовое помещение со свежим ремонтом. Подойдет практически для любого вида деятельности. 

• Помещение находится на самой оживленной улице этого комплекса на бульваре Пикассо ! Входная группа расположена напротив пешеходной зоны бульвара. 

• Продаем помещение с возможностью продления долгосрочной аренды с текущими арендаторами ( сейчас это магазин обуви). Все расчеты по коммунальным платежам и аренде предоставим вашему вниманию в полном объеме. 

• Вентиляция с искусственным побуждением и вентиляция с естественным побуждением, оптоволокно, центральная канализация и отопление, централизованная система энергоснабжения, оптоволокно.

• Метро « Восток» - 5 минут пешком. Удобные подъездные пути. Развитая инфраструктура . 

• Звоните! Организуем показ в удобное для вас время! Продадим любую недвижимость для покупки этой! 

Лицензия: №02240/362 от 31.07.2018, Министерство юстиции РБ

Код объекта: 996770 Договор с собственником: 2234/1 от 2024-08-23 Опубликовано: 12.09.2024 Обновлено: 04.12.2025
0 / 0 / 29
Динамика цен за кв. метрДинамика цен
Похожие объекты
Адрес
Комнат
Площадь
Этаж
Цена за м2
Цена
278.4 м2
1 из
4 807 р. за м2
88.3 м2
1 из 20
6 748 р. за м2
157.7 м2
1 из 11
7 424 р. за м2
102 м2
1 из 10
6 455 р. за м2
26.5 м2
2 из 13
7 416 р. за м2

Вы просматривали

Торговый объект, 131.5 м2
Минск, ул. Петра Мстиславца, д. 8
585 353 р.
4 451 р. за м2
Надежда
Пожалуйста, скажите, что нашли этот объект на Domovita.by
+
Фильтр сохранен