Выберите валюту для сайта:
BYN
Подать БЕСПЛАТНО

Купить торговую точку на ул. Шатько, д. 41 в Минске, 1250000EUR, код 997693

1005.3 м2 1 этаж из 5 Московский район / Грушевская Грушевка
4 214 125 р.
Торговый объект
Город Минск
Район Московский район
Микрорайон Грушевская
Адрес ул. Шатько, д. 41
Метро Грушевка
Время до метро пешком 9 мин.
Время до метро на транспорте 5 мин.
Год постройки 2023 г.
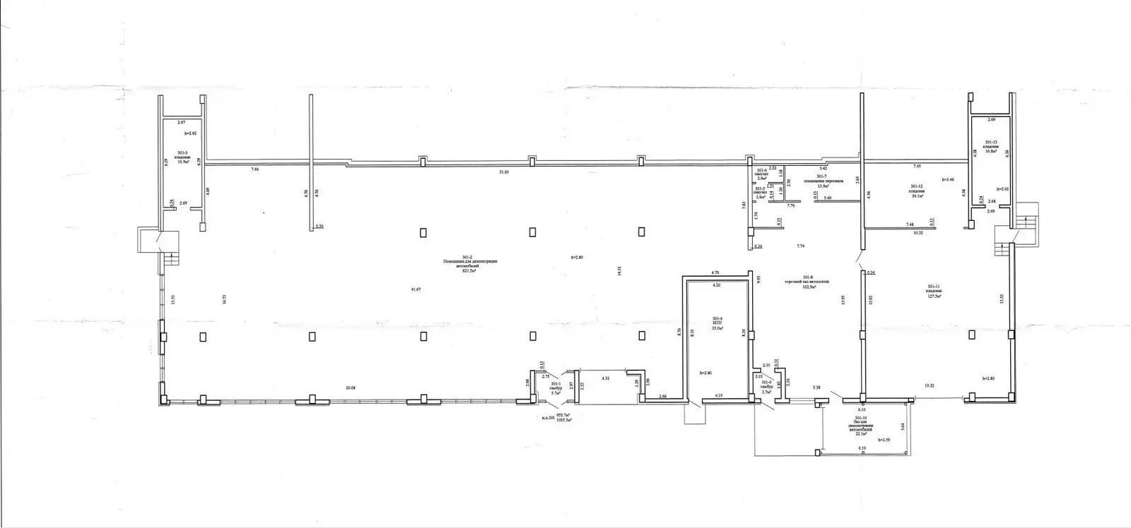
Площадь 1005.3 м2
Этаж 1

Описание

Предлагаем продажу помещения в отличной локации!

Помещение с 2-мя отдельными входами общей площадью 1005,3 м2 располагается в отличном районе г. Минска, рядом с метро Грушевка, трехэтажной развязкой и самым трафиковым проспектом Дзержинского, по адресу ул. Шатько 41.

Локация с высоким пешеходным трафиком в густонаселенном, новом районе Минска. Рядом множество различных заведений формата торговые и общепита: ресторанов, рабов, кофеен, пекарен, магазины, 1 км до ЖК Минск Мир, метро.

Помещение с уникальной, продуманной планировкой.

Назначение помещения подойдет для автосалона, дилерского центра и для, фактически, любых целей, в том числе медицина, тренажерный зал.

Предусмотрена парковка под шлагбаумом (6 машино-мест). Так же есть возможность аренды парковочных места на любом уровне паркинга).

  • Рядом метро (Грушевка);
  • Высокий пешеходный трафик;
  • Высокий автомобильный трафик;
  • Помещение под ремонт;
  • Приточно-вытяжная вентиляция;
  • Парковка;
  • Своя котельная.

Проведены коммуникации: электроснабжение, вода, отопление, канализация, пожарная сигнализация, приточно-вытяжная вентиляция.

Готовы рассмотреть Ваши предложения.

Звоните! Покупатель не оплачивает услуги агентства!

Код объекта: 997693 Договор с собственником: 328/2 от 2025-02-20 Опубликовано: 30.04.2025 Обновлено: 06.02.2026
0 / 1 / 2
Динамика цен за кв. метрДинамика цен
Похожие объекты
Адрес
Комнат
Площадь
Этаж
Цена за м2
Цена
197.8 м2
1 из
2 389 р. за м2
40 м2
2 из 2
4 063 р. за м2
18 м2
3 339 р. за м2
36.7 м2
3 111 р. за м2
18 м2
2 862 р. за м2

Вы просматривали

4 214 125 р. 4 180 р. за м2
Московский р-н
Торговый объект, 1005.3 м2
Минск, ул. Шатько, д. 41
4 214 125 р.
4 180 р. за м2
Кристина Богатова
Пожалуйста, скажите, что нашли этот объект на Domovita.by
+
Фильтр сохранен