Выберите валюту для сайта:
BYN
Подать БЕСПЛАТНО

Продажа торгового помещения на ул. Сухаревская, д. 6 в Минске, 4274250USD, код 996703

3419.4 м2 Фрунзенский район / Сухарево
19 800 797 р.
12 376 946 р.
Торговый объект
Город Минск
Район Фрунзенский район
Микрорайон Сухарево
Адрес ул. Сухаревская, д. 6
Год постройки 2018 г.
Площадь 3419.4 м2
Удобства
Лифт
Кондиционер
Парковка

Описание

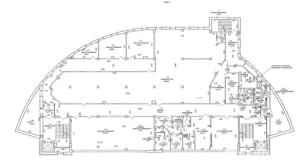
Здание специализированное розничной торговли 

г. Минск, ул. Сухаревская, 6

Общая площадь: 3419.4 м2

Покупатель не оплачивает услуги риэлтерской организации!

Арендный бизнес (доходность 10%)

Торговый центр «На Сухаревской» расположен по адресу: г. Минск, ул.Сухаревская, 6. Объект успешно работает уже на протяжении десяти лет.

3-этажный торговый комплекс расположен на земельном участке площадью 0,2671 га ( на праве постоянного пользования).

В районе наблюдаются потоки людей высокой интенсивности и высокое количество потенциальных покупателей и посетителей сферы услуг.

В непосредственной близости расположена остановка общественного транспорта с несколькими автобусными маршрутами и многочисленными маршрутными такси. По улице Сухаревской и Шаранговича проходят троллейбусные маршруты.

Ближайшая станция метрополитена: станция метро «Каменная горка».

Развитая сеть существующих и построенных автодорог, рациональная организация дорожного движения создает беспрепятственный заезд и выезд грузовых (до 20 тонн) и легковых автомобилей.

На территории, прилегающей непосредственно к Объекту отведено специальное место для парковки личного автотранспорта посетителей Объекта. Через дорогу от Объекта также организован дополнительный плоскостной паркинг. Количество парковочных мест составляет около 210 машино-мест, что позволяет охарактеризовать удобство парковки как хорошее.

Некоторые характеристики объекта:

• система кондиционирование воздуха, вентиляция с естественного и искусственного побуждением ;

• санузлы на каждом этаже;

• пассажирский и грузопассажирский лифты ;

• в здании предусмотрена рампа для упрощения разгрузочно-погрузочных работ;

• парковка;

• удобное место расположения с оживленным пешеходным трафиком.

Код объекта: 996703 Договор с собственником: 44/3 от 2024-08-16 Опубликовано: 24.08.2024 Обновлено: 06.11.2025
0 / 0 / 16
Динамика цен за кв. метрДинамика цен
Похожие объекты
Адрес
Комнат
Площадь
Этаж
Цена за м2
Цена
21.2 м2
2 117 р. за м2
267 м2
2 603 р. за м2
18.2 м2
2 из 2
2 896 р. за м2
18.1 м2
2 из 2
2 352 р. за м2
21.1 м2
1 из 2
2 333 р. за м2

Вы просматривали

224 579 р. 4 734 р. за м2
Октябрьский р-н
1 882 205 р. 9 948 р. за м2
Октябрьский р-н
1 027 974 р. 3 545 р. за м2
Ленинский р-н
12 376 946 р. 3 620 р. за м2
Фрунзенский р-н
Торговый объект, 3419.4 м2
Минск, ул. Сухаревская, д. 6
12 376 946 р.
3 620 р. за м2
Смолка Андрей
Пожалуйста, скажите, что нашли этот объект на Domovita.by
+
Фильтр сохранен