Выберите валюту для сайта:
BYN
Подать БЕСПЛАТНО

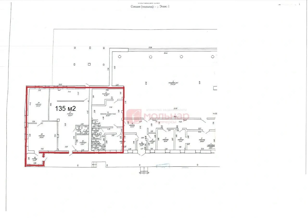
Аренда склада на ул. Притыцкого, д. 4 в Минске, код 964285

135 м2 Фрунзенский район / Ольшевского Пушкинская
6 402 р./мес.
Склад
Город Минск
Район Фрунзенский район
Микрорайон Ольшевского
Адрес ул. Притыцкого, д. 4
Метро Пушкинская
Время до метро пешком 6 мин.
Время до метро на транспорте 4 мин.
Площадь 135 м2
Удобства
Отдельный вход

Описание

Сдается помещение с отдельным входом на Притыцкого 4.

Отдельно стоящее здание, первый этаж, с/у, парковка, удобная погрузка-разгрузка, рампа.

Возможность использовать часть помещения под склад.

Площадь-135 м2.

Стоимость- 14 евро, с НДС.

Код объекта: 964285 Договор с собственником: 180/1А Опубликовано: 26.11.2025 Обновлено: 26.11.2025
0 / 0 / 1
Динамика цен за кв. метрДинамика цен
Похожие объекты
Адрес
Комнат
Площадь
Этаж
Цена за м2
Цена
24.4 м2
26 р. за м2

Вы просматривали

3 000 р./мес. 20 р. за м2
Фрунзенский р-н
175 р./мес. 31 р. за м2
Октябрьский р-н
1 125 р./мес. 14 р. за м2
Советский р-н
6 402 р./мес. 47 р. за м2
Фрунзенский р-н
Склад, 135 м2
Минск, ул. Притыцкого, д. 4
6 402 р./мес.
47 р. за м2
Александра
Пожалуйста, скажите, что нашли этот объект на Domovita.by
+
Фильтр сохранен