Выберите валюту для сайта:
BYN
Подать БЕСПЛАТНО

Купить складское помещение на пер. Монтажников 4-й, д. 13 в Минске

722.5 м2 2 этаж из 2 Фрунзенский район / Сухарево
1 359 893 р.
Склад
Город Минск
Район Фрунзенский район
Микрорайон Сухарево
Адрес пер. Монтажников 4-й, д. 13
Год постройки 2022 г.
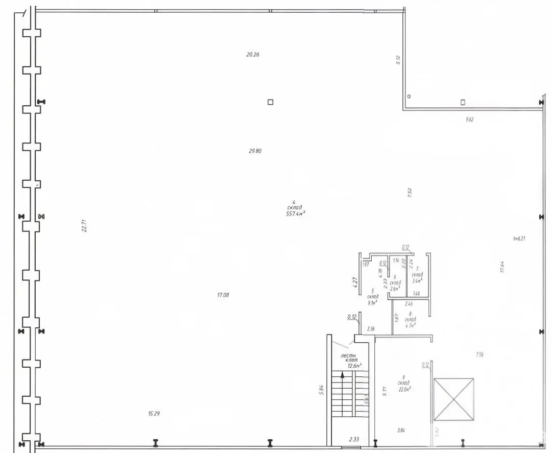
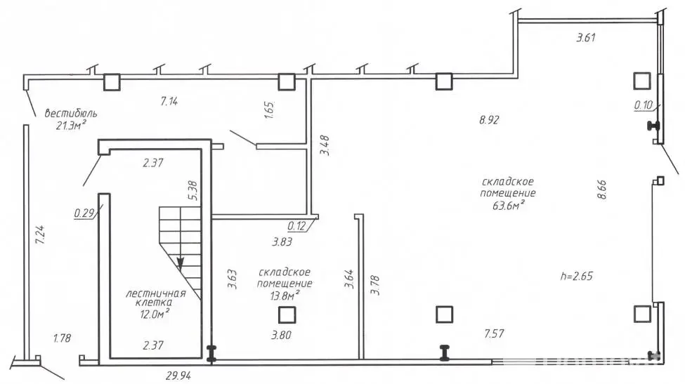
Площадь 722.5 м2
Этаж 2

Описание

Продается двухэтажное панельное складское помещение 2022 года постройки.

Высота потолков складского помещения составляет 4-6 метров. Здание возведено из панелей и кирпича, пол наливной, с пылезащитой. Входная группа организована роллетными воротами и металлическими дверьми. Подъем грузов на второй этаж осуществляется гидравлическим подъёмником грузоподъемностью в 2 тонны, вместимостью 3-4 поддона. Мощность – 15 кВт. Вблизи расположена ТП с возможностью увеличения электрической мощности.

Удобное расположение – 5 минут до МКАД. Склад находится на огороженной охраняемой территории с круглосуточным доступом, парковочными местами общего пользования и площадкой у склада около 150 кв м. Склад занят арендатором.

Код объекта: 995056 Договор с собственником: 117/3 от 2025-08-05 Опубликовано: 28.08.2025 Обновлено: 04.12.2025
0 / 0 / 9
Динамика цен за кв. метрДинамика цен
Похожие объекты
Адрес
Комнат
Площадь
Этаж
Цена за м2
Цена
1218.8 м2
1 998 р. за м2
1218.8 м2
1 882 р. за м2
496.3 м2
1 882 р. за м2

Вы просматривали

Склад, 722.5 м2
Минск, пер. Монтажников 4-й, д. 13
1 359 893 р.
1 882 р. за м2
Александр Крюков
Пожалуйста, скажите, что нашли этот объект на Domovita.by
+
Фильтр сохранен