Подать БЕСПЛАТНО

Купить 1-комнатную квартиру в Минске, ул. Брилевская, д. 27

г. Минск, ул. Брилевская, 27
Показать на карте
Октябрьский район
Аэродромная
18 мин
10 мин
318 527 р.
Цена за м2: 5 641 р.
Код объекта: 1189377
1 комната
53.9 м2
14 этаж из 25
Обновлено: 07.08.2025
318 527 р.
Цена за м2: 5 641 р.
Предложить свою цену

О квартире

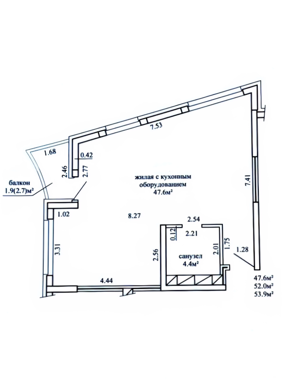
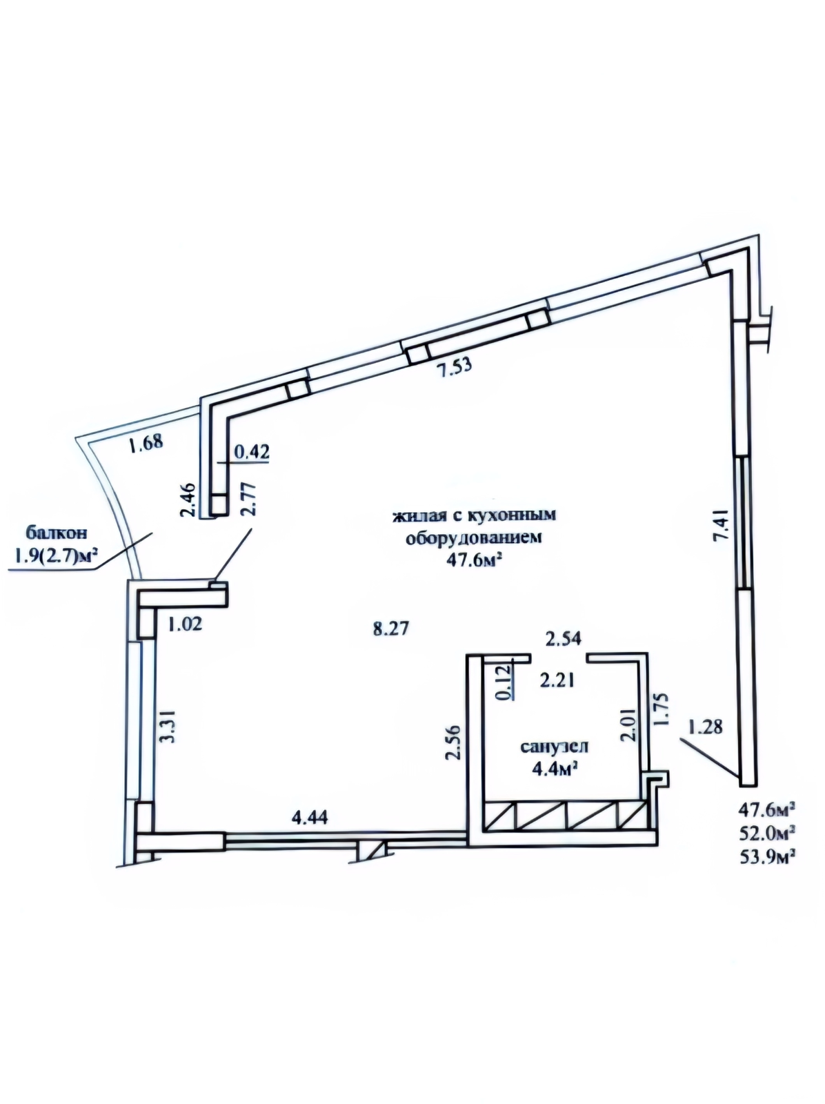
Площадь
53.9 м2
общая
47.6 м2
жилая
Санузел
Совмещенный
Балкон
Балкон
Тип ремонта
Без отделки

О доме

Этаж
14 из 25
Материал стен
Каркасно-блочный
Год постройки
2024

Описание

Квартира без отделки в ЖК Минск Мир

Высокие потолки, окна в пол и простор для воплощения дизайнерских решений- в продаже новая квартира в ЖК Минск Мир, дом Румба, Брилевская 27.
Квартира расположена на 14 этаже 25-тм этажного дома, из окон открывается прекрасный вид на г. Минск.

Потолки 2,75 м., окна в пол- всегда будет много света.
Площадь по СНБ 53,9 кв.м
Планировка позволяет сделать две раздельные комнаты и кухню-гостиную либо одну спальню с большой жилой комнатой с кухонным оборудованием.
Дизайн-проект с чертежами и визуализацией - в подарок покупателю.

Удачное расположение дома, до метро Институт Культуры 5 минут на транспорте.
В пешей доступности сад, школа, магазины и другая необходимая инфраструктура.

Звоните и записывайтесь на просмотр.

Квартиру можно купить с привлечением кредита.
Поможем продать вашу недвижимость для покупки этой квартиры.

АннаАгент
4 года на сайте
Условия сделки:Чистая продажа
Пожаловаться на объявление
Агентство недвижимости
"АвторЭстейт"

Местоположение

г. Минск, ул. Брилевская, 27
Октябрьский район
Опубликовано: 07.08.2025

Возможно, вам будет интересно

Похожие объекты

На этой улицеВ этом домеВ этом районе
401 799 р.
Цена за м2: 5 478 р.
Октябрьский район, ул. Брилевская
Аэродромная
16 мин
9 мин
4-комн. кв
68.9
м2
1 этаж из 25

Фотографии отсутствуют

266 086 р.
Цена за м2: 5 512 р.
Октябрьский район, ул. Брилевская
Аэродромная
16 мин
9 мин
3-комн. кв
55.5
м2
1 этаж из 25

Фотографии отсутствуют

328 239 р.
Цена за м2: 5 478 р.
Октябрьский район, ул. Брилевская
Аэродромная
16 мин
9 мин
4-комн. кв
68.9
м2
1 этаж из 25
303 064 р.
Цена за м2: 4 700 р.
Октябрьский район, ул. Брилевская
Аэродромная
18 мин
10 мин
4-комн. кв
73.5
м2
4 этаж из 25
303 475 р.
Цена за м2: 4 700 р.
Октябрьский район, ул. Брилевская
Аэродромная
18 мин
10 мин
4-комн. кв
73.6
м2
3 этаж из 25
305 126 р.
Цена за м2: 4 700 р.
Октябрьский район, ул. Брилевская
Аэродромная
18 мин
10 мин
4-комн. кв
74
м2
2 этаж из 25
347 484 р.
Цена за м2: 8 473 р.
Октябрьский район, ул. Братская
Ковальская слобода
12 мин
7 мин
2-комн. кв
41.6
36
м2
6 этаж из 22
352 508 р.
Цена за м2: 6 087 р.
Октябрьский район, ул. Николы Теслы
Аэродромная
8 мин
5 мин
3-комн. кв
56.8
м2
1 этаж из 25
440 031 р.
Цена за м2: 6 087 р.
Октябрьский район, ул. Николы Теслы
Аэродромная
8 мин
5 мин
4-комн. кв
71.2
м2
1 этаж из 25