О квартире
Площадь
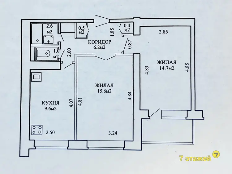
50.6 м2
общая
30.3 м2
жилая
9.6 м2
кухня
Отдельных комнат
2 комнаты
Санузел
раздельный
Балкон
Балкон застеклен
Тип ремонта
С отделкой
О доме
Этаж
3 из 12
Материал стен
Кирпичный
Год постройки
1986
Описание
Продается комфортная и светлая 2-к квартира с просторным балконом в г.Минск по ул.Маяковского, д.22/1, этаж 3/12, Ленинский р-н, мк-р "Маяковского", окна выходят на р.Свислочь в пешей доступности Лошицкий парк!
Квартира имеет ряд отличных преимуществ: не высокий 3й этаж из 12-ти; удачная и практичная планировка квартиры; раздельный санузел, просторный балкон, две изолированные комнаты и просторная кухня, окна выходят на восток с видом на р.Свислочь.
Площадь квартиры указана по СНБ - 52,2кв.м. Общая площадь квартиры 50,6кв.м. Площадь жилая 30,3кв.м., гостиная/кухня 9,6кв.м.
В квартире выполнен нормальный ремонт; стены оклеены обоями, частично окрашены; на полу уложен паркет, линолеум и плитка; потолки побелены. На окна установлены качественные стеклопакеты ПВХ, широкие оконные проёмы, что делает квартиру очень светлой. Кухня оснащена кухонным гарнитуром с электроплитой. Входная дверь двойная – металлическая.
Аккуратный и чистый подъезд, есть домофон, телефон/интернет. Установлено два лифта. На этаже 6ть квартир, в большом тамбуре три квартиры, все соседи приветливые, порядочные и дружелюбные. Дом оборудован видеонаблюдением: в подъезде, во дворе и на парковках. Современная детская площадка, большая парковка, всегда есть возможность припарковать свой автомобиль у подъезда.
Вся встроенная, кухонная мебель и техника остается.
Квартира в хорошем жилом состоянии, готова к заселению и проживанию!
Отлично развитая инфраструктура района: дом расположен в окружении: несколько образовательных учреждений (самые ближайшие рядом с домом детский садик №300 и СШ №55), большого количества магазинов, кафе, гипермаркет «Корона», ТЦ «Червенский», «Санта», торговых и медицинских центров, аптек, поликлиника. Рядом с домом Лошицкий парк и парк «Серебряный лог» - отличное место для прогулок и отдыха. В доступности всё, что необходимо для комфортной жизни.
Хорошее транспортное сообщение: многочисленные остановки общественного транспорта, ж/д станция, вблизи станции метро «Ковальская Слобода», удобный выезд на МКАД, 2-е кольцо, на ул.Денисовская и Маяковского.
В шаговой доступности остановки общественного транспорта (7-10 минут до Вокзала и станции метро «Площадь Ленина»). 15 минут ходьбы до станции метро «Ковальская Слобода».
Работаем с различными видами кредитования и подыщем выгодный для Вас банк, т.к. в нашей компании работает ипотечный брокер – он поможет правильно выбрать программу кредитования и качественно оформить документацию для подачи заявки. Работаем с:
-Системой строительных сбережений от Беларусбанка;
-Семейным капиталом;
-Ипотечным кредитованием и всеми видами кредитования на покупку недвижимости.
Отличный вариант как для постоянного проживания, так и для коммерческого использования.
Окажем помощь в продаже вашего объекта для покупки этой квартиры!
Ответим на все интересующие вопросы, согласуем удобное время показа!
Полное юридическое сопровождение и безопасность сделки гарантируем!
Свяжитесь с нами для получения дополнительной информации!
Быстрое освобождение и выход на сделку!
Приглашаем к просмотру и покупке!
Звоните прямо сейчас!
Агент — Агент
9 лет на сайте
Условия сделки:Чистая продажа
Показать почту
Пожаловаться на объявление
Агентство недвижимости
7 этажей
УНП: 192361483 Лицензия: от 14.11.2014 № 225
Договор №: 1471/3 от 08.12.2025










































