О квартире
Площадь
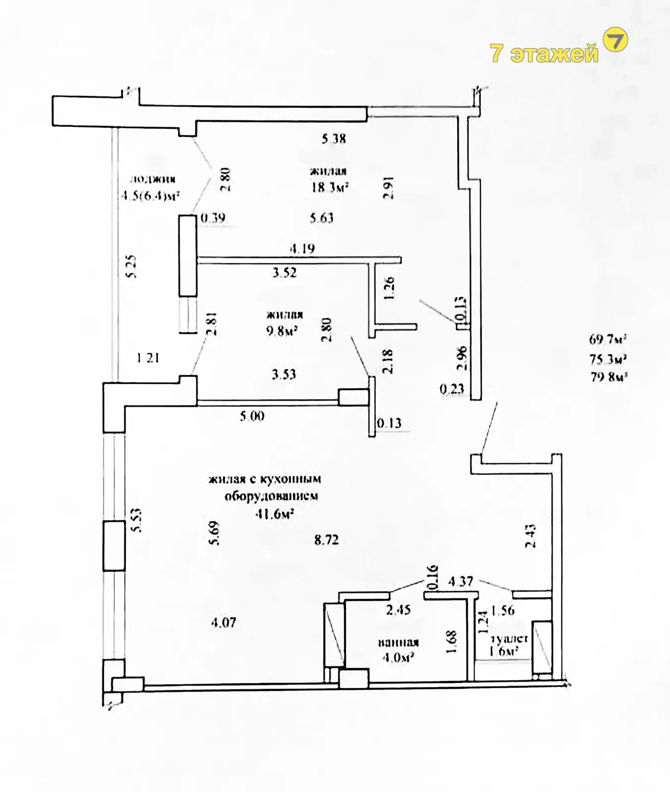
75.3 м2
общая
69.7 м2
жилая
Отдельных комнат
2 комнаты
Санузел
раздельный
Балкон
Лоджия застеклена
Тип ремонта
С отделкой
О доме
Этаж
15 из 20
Материал стен
Каркасно-блочный
Год постройки
2017
Описание
Продается новая 3-к квартира по ул.Дзержинского,19 в г.Минске, Московский р-н, мк-н "Грушевка".
Квартира имеет ряд отличных преимуществ: видовой 15-й этаж из 20-ти; удачная и практичная планировка квартиры; просторный ванная и санузел с рукомойником, 6.4кв.м. лоджия с выходом их 2х комнат, две изолированные комнаты и кухня/гостиная; просторная прихожая, окна выходят на торцевую сторону дома (видна ст. метро "Грушевка"). Площадь квартиры указана по СНБ - 79,8кв.м. Общая площадь квартиры 75,3кв.м. Площадь жилая 69,7кв.м., гостиная/кухня 41,6кв.м.
В квартире выполнен отличный качественный ремонт; на стенах венецианская штукатурка, на полу уложен качественные паркет и плитка; натяжные потолки. На окна установлены качественные стеклопакеты ПВХ, широкие оконные проёмы, что делает квартиру очень светлой. Большим преимуществом для новых владельцев станет наличие двух просторных шкафа-купе, что поможет рационально организовать пространство для хранения. Санузел и ванная облицованы плиткой. Входная дверь – металлическая.
Кухня оснащена встроенным кухонным гарнитуром с индукционной электроплитой, конвенционным духовым шкафом.
Просторный аккуратный и чистый подъезд, телефон/интернет. В подъезде два лифта, один из которых грузовой. В общем тамбуре 4-е квартир, все соседи приветливые, порядочные и дружелюбные. Современный, благоустроенный двор и детская площадка, . Дом оборудован видеонаблюдением: в подъезде, во дворе и на парковках. большая придомовая парковка, всегда есть возможность припарковать свой автомобиль у подъезда, имеется и подземный паркинг.
Квартира оснащена самыми современными технологиями и материалами:
Кухня-гостиная 41,6 м.кв. с французскими окнами;
Лоджия 6.4кв.м. с выходом из двух комнат, в одной из которых распашные двери;
2-а встроенных шкафа;
Квартира продается со встроенной мебелью и техникой;
Кухня оснащена фирменной техникой (MAUNFELD): индукционная варочная поверхность, конвенционный духовой шкаф;
Раздельный санузел;
В санузле уложена импортная плитка; установлена сантехника;
На стенах венецианская штукатурка, натяжной потолок, уложен качественный ламинат;
Входные двери с шумоизоляцией.
Квартира с новым ремонтом, никто не проживал, готова к заселению и проживанию!
Отлично развита инфраструктура: дом расположен в одном из самых востребованных микрорайонов с развитой инфраструктурой в шаговой доступности и отличной транспортной доступностью. Есть возможность дополнительно приобрести Машино-место в подземном паркинге.
Хорошее транспортное сообщение: в шаговой доступности остановки общественного транспорта, ст.метро "Грушевка" (10-12 минут до Авто/ЖД Вокзала и станции метро «Площадь Ленина»).
Работаем с различными видами кредитования и подыщем выгодный для Вас банк, т.к. в нашей компании работает ипотечный брокер – он поможет правильно выбрать программу кредитования и качественно оформить документацию для подачи заявки. Работаем с:
-Системой строительных сбережений от Беларусбанка;
-Семейным капиталом;
-Ипотечным кредитованием и всеми видами кредитования на покупку недвижимости.
Квартира идеально подходит как для собственного проживания, так и для сдачи в аренду!
Свяжитесь с нами для получения дополнительной информации.
Отличный вариант как для постоянного проживания, так и для коммерческого использования.
Окажем помощь в продаже вашего объекта для покупки этой квартиры!
Ответим на все интересующие вопросы, согласуем удобное время показа!
Полное юридическое сопровождение и безопасность сделки гарантируем!
Быстрое освобождение и выход на сделку!
Приглашаем к просмотру и покупке!
Звоните прямо сейчас!
Агент — Агент
9 лет на сайте
Условия сделки:Чистая продажа
Показать почту
Пожаловаться на объявление
Агентство недвижимости
7 этажей
УНП: 192361483 Лицензия: от 14.11.2014 № 225
Договор №: 1171/3 от 26.08.2025













































