Подать БЕСПЛАТНО

Продажа 3-комнатной квартиры в Минске, пр-т Независимости, д. 88

г. Минск, пр-т Независимости, 88
Показать на карте
Первомайский район
Московская
6 мин
486 470 р.
Цена за м2: 5 622 р.
Код объекта: 1178262
3 комнаты
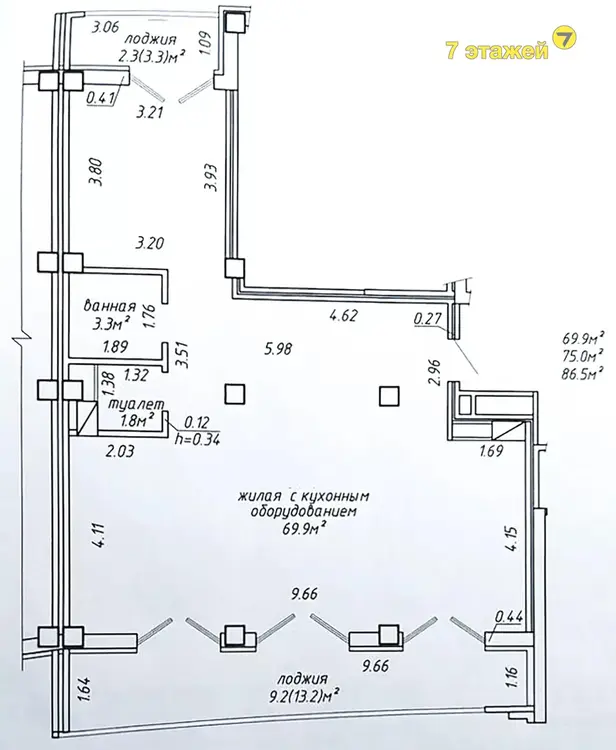
86.5 м2
6 этаж из 9
Обновлено: 29.09.2025
486 470 р.
Цена за м2: 5 622 р.
Предложить свою цену

О квартире

Площадь
86.5 м2
общая
69.9 м2
жилая
Отдельных комнат
3 комнаты
Санузел
раздельный
Балкон
Лоджия
Тип ремонта
Строительная отделка

О доме

Этаж
6 из 9
Материал стен
Монолитно-блочный
Год постройки
2020

Описание

Продается трехкомнатная квартира в центре Минска возле парка Челюскинцев! Это отличное предложение для тех, кто ищет просторную трехкомнатную квартиру в центре Минска с удобной инфраструктурой. Вот основные преимущества: 1. Расположение: - Центр Минска, рядом с парком Челюскинцев (100 метров). - Станция метро «Парк Челюскинцев» всего в 3 минутах ходьбы. - Хорошая транспортная доступность. 2. Площадь и планировка: - По СНБ: 86.5 кв.м. - Общая площадь: 75 кв.м. - Жилая площадь: 69.9 кв.м. - Лоджии: 13.2/3.3 кв.м. - Высокие потолки (2.74 м). - Окна на обе стороны, что обеспечивает хорошее естественное освещение. 3. Инфраструктура: - Современный детский сад в доме. - Рядом гимназия, школы, банки, аптеки, фитнес-центры, салоны красоты и торговые центры. - Благоустроенная детская площадка и зеленая зона. 4. Безопасность и комфорт: - Видеонаблюдение по всей территории и внутри дома. - Бесшумные импортные лифты. - Наземная и подземная парковка. 5. Дом: - Каркасно-блочный дом, 6/9 этажей. - Сквозные входы в подъезд. Этот вариант подойдет для семей с детьми благодаря близости парка, детских учреждений и развитой инфраструктуры. Также квартира будет интересна тем, кто ценит удобное расположение, тишину и комфорт. Если вас заинтересовало это предложение, приглашаем Вас на просмотр в любое удобное для Вас время!
АгентАгент
9 лет на сайте
Условия сделки:Чистая продажа
Показать почту
Пожаловаться на объявление
Агентство недвижимости
7 этажей

Местоположение

г. Минск, пр-т Независимости, 88
Первомайский район
Опубликовано: 29.09.2025

Возможно, вам будет интересно

Похожие объекты

На этой улицеВ этом домеВ этом районе
881 542 р.
Цена за м2: 6 619 р.
Первомайский район, пр-т Независимости
Академия наук
7 мин
4 мин
3-комн. кв
131.4
65.7
20.2 м2
6 этаж из 8
589 365 р.
Цена за м2: 11 214 р.
Ленинский район, пр-т Независимости
Купаловская
5 мин
2-комн. кв
65.7
31.71
11.27 м2
3 этаж из 6
707 592 р.
Цена за м2: 5 095 р.
Первомайский район, пр-т Независимости
Уручье
3 мин
4-комн. кв
146.4
87.8
10.9 м2
10 этаж из 10
695 796 р.
Цена за м2: 9 384 р.
Первомайский район, пр-т Независимости
Московская
6 мин
3-комн. кв
71.9
54.7
м2
4 этаж из 15
409 814 р.
Цена за м2: 8 794 р.
Первомайский район, пр-т Независимости
Московская
6 мин
1-комн. кв
46.6
40.1
м2
4 этаж из 15
574 919 р.
Цена за м2: 11 130 р.
Первомайский район, пр-т Независимости
Парк Челюскинцев
9 мин
5 мин
2-комн. кв
58.7
53.1
м2
10 этаж из 12
663 368 р.
Цена за м2: 6 516 р.
Первомайский район, ул. Петра Мстиславца
Восток
5 мин
4-комн. кв
135.9
100
20 м2
3 этаж из 25
741 456 р.
Цена за м2: 5 179 р.
Первомайский район, ул. Петра Мстиславца
Восток
5 мин
4-комн. кв
122.9
100
20 м2
3 этаж из 20
884 490 р.
Цена за м2: 5 664 р.
Партизанский район, ул. Парниковая
Восток
24 мин
13 мин
4-комн. кв
190.5
129.2
11.8 м2
3 этаж из 4