Подать БЕСПЛАТНО

Купить 3-комнатную квартиру в Минске, ул. Лейтенанта Кижеватова, д. 3/В

г. Минск, ул. Лейтенанта Кижеватова, 3/В
Показать на карте
Октябрьский район
Аэродромная
10 мин
5 мин
471 632 р.
Цена за м2: 7 157 р.
Код объекта: 1214535
3 комнаты
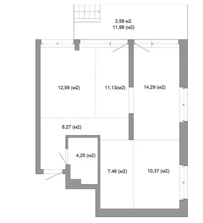
65.9 м2
6 этаж из 20
Обновлено: 09.12.2025
471 632 р.
Цена за м2: 7 157 р.
Предложить свою цену

О квартире

Площадь
65.9 м2
общая
57.8 м2
жилая
Санузел
раздельный
Балкон
Лоджия
Тип ремонта
Хороший

О доме

Этаж
6 из 20
Год постройки
2020

Описание

Продается великолепная 3-к квартире с современным ремонтом в жилом комплексе Минск-Мир! Ремонт сделан из высококачественных материалов в светлых тонах. Три раздельные комнаты. Квартира укомплектована мебелью, всё продумано до мелочей.
Это идеальное решение для вашего комфорта и уюта. Квартира расположена в районе с развитой инфраструктурой: всего в нескольких шагах современные школы и детские садики, а также магазины для удобных покупок.

Во дворе комплекса вас ждут современные детские площадки, теннисные корты, а также помещение для хранения велосипедов — идеальное место для активных семей.

Здесь вы сможете наслаждаться качественной жизнью в абсолютно новом формате. Мы готовы показать квартиру в удобное для вас время и окажем помощь в продаже вашей недвижимости для покупки этой прекрасной квартиры. Не упустите шанс стать частью уютного и современного сообщества! Звоните прямо сейчас!

Общая площадь указана по СНБ.

Лицензия: 02240/446 МЮ РБ, 11.07.2022

ФатторияАгент
3 года на сайте
Условия сделки:продажа
Показать почту
Пожаловаться на объявление
Агентство недвижимости
"АН Фаттория"

Местоположение

г. Минск, ул. Лейтенанта Кижеватова, 3/В
Октябрьский район
Опубликовано: 09.12.2025

Возможно, вам будет интересно

Похожие объекты

На этой улицеВ этом домеВ этом районе
255 241 р.
Цена за м2: 4 974 р.
Октябрьский район, ул. Лейтенанта Кижеватова
Аэродромная
9 мин
5 мин
3-комн. кв
75.5
м2
2 этаж из 25
342 773 р.
Цена за м2: 5 768 р.
Октябрьский район, ул. Лейтенанта Кижеватова
Аэродромная
10 мин
6 мин
3-комн. кв
68.5
м2
1 этаж из 20
266 457 р.
Цена за м2: 5 837 р.
Октябрьский район, ул. Лейтенанта Кижеватова
Аэродромная
15 мин
8 мин
2-комн. кв
52.6
м2
1 этаж из 16
341 137 р.
Цена за м2: 6 086 р.
Октябрьский район, ул. Лейтенанта Кижеватова
Ковальская слобода
24 мин
13 мин
3-комн. кв
64.91
38.01
м2
1 этаж из 20
403 835 р.
Цена за м2: 7 150 р.
Октябрьский район, ул. Лейтенанта Кижеватова
Аэродромная
10 мин
5 мин
3-комн. кв
61.8
24.3
33.1 м2
4 этаж из 16
395 109 р.
Цена за м2: 5 768 р.
Октябрьский район, ул. Лейтенанта Кижеватова
Аэродромная
10 мин
5 мин
3-комн. кв
68.5
59
м2
1 этаж из 20
371 148 р.
Цена за м2: 5 526 р.
Октябрьский район, пр-т Мира
Аэродромная
7 мин
4 мин
4-комн. кв
69.4
м2
1 этаж из 25
359 746 р.
Цена за м2: 5 630 р.
Октябрьский район, пр-т Мира
Аэродромная
7 мин
4 мин
3-комн. кв
55.2
м2
1 этаж из 25
277 632 р.
Цена за м2: 5 595 р.
Октябрьский район, ул. Белградская
Аэродромная
8 мин
5 мин
4-комн. кв
69
м2
1 этаж из 25