Подать БЕСПЛАТНО

Продажа 3-комнатной квартиры в Минске, ул. Прушинских, д. 6

г. Минск, ул. Прушинских, 6
Показать на карте
Ленинский район
384 352 р.
Цена за м2: 4 804 р.
Код объекта: 1225794
3 комнаты
80 м2
4 этаж из 9
Обновлено: 28.01.2026
384 352 р.
Цена за м2: 4 804 р.
Предложить свою цену

О квартире

Площадь
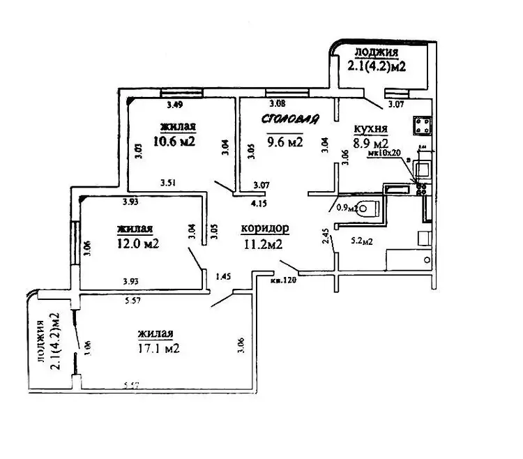
80 м2
общая
39.7 м2
жилая
8.9 м2
кухня
Санузел
раздельный
Балкон
Лоджия
Тип ремонта
Хороший

О доме

Этаж
4 из 9
Материал стен
Панельный
Год постройки
2002

Описание

Просторная 3-комнатная  квартира.

Квартира, которая сочетает простор, функциональность: три изолированные комнаты и кухня-столовая. Здесь есть всё необходимое для комфортной жизни и даже больше.

Адрес: г. Минск, ул. Прушинских д. 6

Продаётся просторная квартира на 4 этаже 9-этажного дома 2002 года постройки.

Общая площадь по СНБ: 80, жилая 39,7, кухня-столовая 18,5.

Удобная планировка с  изолированными комнатами.

Окна выходят на две, что делает квартиру светлой и проветриваемой, а просторный коридор создаёт ощущение объёма и свободы.

Две большие застеклённые лоджии позволяют оборудовать полноценные зоны отдыха или рабочие кабинеты,

Просторная кухня-столовая порадует любую хозяйку и позволит собираться всем вместе за семейным столом.

Прекрасная инфраструктура: три магазина «Соседи» и гипермаркет «Евроопт», четыре аптеки, в том числе круглосуточная, гимназия, школы, детские сады.  Во дворе - пункты выдачи WB и Ozon, рядом три спортзала, салоны красоты и всё необходимое для активного и комфортного образа жизни.

Отличное транспортное сообщение:  до центра города можно добраться всего за 15–20 минут, выезд на кольцевую. Рядом несколько остановок общественного транспорта.

Для прогулок и отдыха на природе рядом находится Лошицкий парк и набережная Чижовского водохранилища - всего 10 минут пешком, и вы наслаждаетесь зеленью, свежим воздухом и видом на воду.

 Квартира готова к проживанию! Звоните и записывайтесь на просмотр. Мы будем рады помочь вам стать её новым владельцем.

Поможем продать Вашу недвижимость для покупки этой квартиры.

Лицензия: №02240/362 МЮ РБ, 31.07.2018

ТатьянаАгент
7 лет на сайте
Условия сделки:продажа
Показать почту
Пожаловаться на объявление
Агентство недвижимости
Фаттория Плюс

Местоположение

г. Минск, ул. Прушинских, 6
Ленинский район
Опубликовано: 28.01.2026

Возможно, вам будет интересно

Похожие объекты

На этой улицеВ этом районе
401 562 р.
Цена за м2: 5 564 р.
Ленинский район, ул. Прушинских
3-комн. кв
71.5
41.7
8.7 м2
9 этаж из 9
387 134 р.
Цена за м2: 4 779 р.
Ленинский район, ул. Прушинских
3-комн. кв
78
46.4
8.7 м2
7 этаж из 9
487 611 р.
Цена за м2: 5 502 р.
Ленинский район, ул. Прушинских
Слуцкий гостинец
27 мин
15 мин
3-комн. кв
88
53.9
11.3 м2
6 этаж из 8
401 562 р.
Цена за м2: 5 564 р.
Ленинский район, ул. Прушинских
3-комн. кв
71.5
41.7
8.7 м2
9 этаж из 9
281 093 р.
Цена за м2: 5 314 р.
Ленинский район, ул. Янки Лучины
2-комн. кв
55.6
29.2
8.8 м2
4 этаж из 6
567 923 р.
Цена за м2: 6 589 р.
Ленинский район, ул. Язепа Дроздовича
Неморшанский сад
25 мин
14 мин
3-комн. кв
84.8
45.3
10.8 м2
3 этаж из 10