Подать БЕСПЛАТНО

Продажа 4-комнатной квартиры в Минске, ул. Лейтенанта Кижеватова, д. 3/Д

г. Минск, ул. Лейтенанта Кижеватова, 3/Д
Показать на карте
Октябрьский район
Аэродромная
9 мин
5 мин
437 275 р.
Цена за м2: 6 546 р.
Код объекта: 1214983
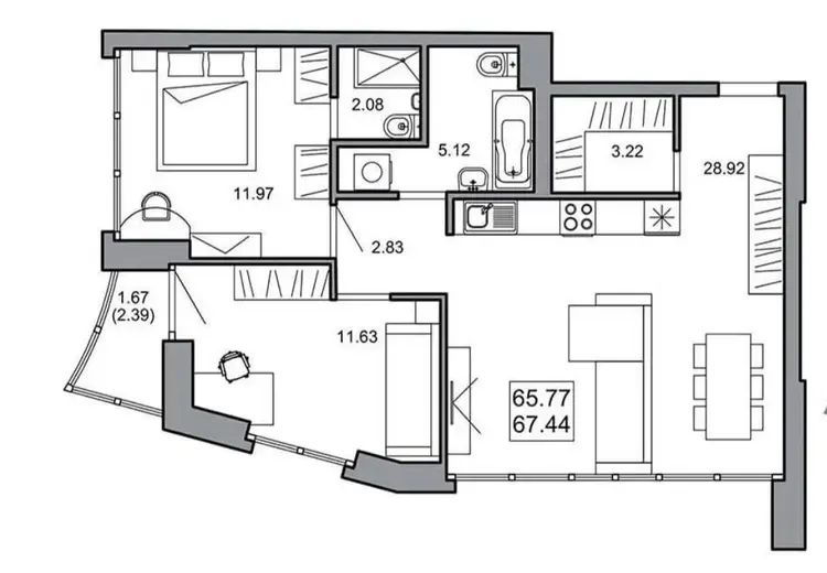
4 комнаты
66.8 м2
9 этаж из 25
Обновлено: 11.12.2025
437 275 р.
Цена за м2: 6 546 р.
Предложить свою цену

О квартире

Площадь
66.8 м2
общая
55.2 м2
жилая
Санузел
2 сан.узла
Балкон
Балкон
Тип ремонта
Хороший

О доме

Этаж
9 из 25
Год постройки
2022

Описание

Эта квартира — современное и комфортное пространство для жизни.

 

Основные характеристики:

•  Площадь СНБ – 70.6 м2, общая площадь – 66.8 м2, жилая 55.2 м2. Здесь достаточно места для всей вашей семьи!

•  Дом сдан в эксплуатацию в 2022 году – вы приобретаете современное жилье в отличном состоянии.

•  Удобный этаж: 9 этаж из 17 – идеальный баланс между комфортом и видом из окна.

•  Два бесшумных скоростных лифта, один из них – грузовой, быстро доставят вас на нужный этаж.

 

Стильный и современный ремонт:

•  Кухня-гостиная: Просторное и функциональное пространство для семейных обедов, дружеских посиделок и творческих экспериментов.

•  Три просторные спальни: Личное пространство для каждого члена семьи, где можно расслабиться и отдохнуть.

• 2 сан.узла для большой семьи.

•  Светлая лоджия — отличное место для отдыха.

 

Локация:

•  Детский сад в соседнем дворе: Вам не придется тратить время на дорогу в детский сад – он находится прямо под вашими окнами.

•  Рядом поликлиника №41 (взрослая) и детская поликлиника №13.

• Развитая инфраструктура района — всё необходимое рядом. В нескольких минутах — ТЦ «Авиамол», магазины, кафе, рестораны и развлекательные центры.

•  Удобное транспортное сообщение: Легко добраться в любую точку города (10 минут до метро пешком).

 

Ждем вас на просмотры! Мы с удовольствием расскажем и покажем вам все преимущества этой замечательной квартиры! Звоните прямо сейчас!

 

 

Площадь указана по СНБ.

 

Работаем с различными видами кредитования:

- Система строительных сбережений от Беларусбанка;

-Семейный капитал;

-Ипотечное кредитование и все виды кредитования на покупку недвижимости.

А также:  

-Подыщем выгодный для Вас банк;

-Поможем продать вашу недвижимость для покупки этой.

 

Напишите нам в удобный для Вас мессенджер:

Viber | Telegram | WhatsApp

Ответим на Ваши вопросы, предоставим всю необходимую информацию.

 

ООО «Артель Недвижимость»

УНП 193820882

Лицензия Министерства Юстиции №48250000081913 от 06.03.2025 г.

Договор № 741/2 от 08.12.2025

НедвижимостьАгент
год на сайте
Условия сделки:продажа
Показать почту
Пожаловаться на объявление
Агентство недвижимости
ООО "Гарант Недвижимость"

Местоположение

г. Минск, ул. Лейтенанта Кижеватова, 3/Д
Октябрьский район
Опубликовано: 11.12.2025

Возможно, вам будет интересно

Похожие объекты

На этой улицеВ этом домеВ этом районе
213 188 р.
Цена за м2: 6 292 р.
Октябрьский район, ул. Лейтенанта Кижеватова
Аэродромная
14 мин
8 мин
1-комн. кв
38.8
м2
1 этаж из 16
357 678 р.
Цена за м2: 5 782 р.
Октябрьский район, ул. Лейтенанта Кижеватова
Аэродромная
9 мин
5 мин
4-комн. кв
71.2
м2
1 этаж из 25
291 201 р.
Цена за м2: 5 884 р.
Октябрьский район, ул. Лейтенанта Кижеватова
Аэродромная
9 мин
5 мин
3-комн. кв
56.9
м2
1 этаж из 25
357 678 р.
Цена за м2: 5 782 р.
Октябрьский район, ул. Лейтенанта Кижеватова
Аэродромная
9 мин
5 мин
4-комн. кв
71.2
м2
1 этаж из 25
291 201 р.
Цена за м2: 5 884 р.
Октябрьский район, ул. Лейтенанта Кижеватова
Аэродромная
9 мин
5 мин
3-комн. кв
56.9
м2
1 этаж из 25
503 485 р.
Цена за м2: 7 326 р.
Октябрьский район, ул. Лейтенанта Кижеватова
Аэродромная
9 мин
5 мин
4-комн. кв
66.6
55.1
м2
25 этаж из 25
369 959 р.
Цена за м2: 5 782 р.
Октябрьский район, пр-т Мира
Аэродромная
7 мин
4 мин
4-комн. кв
69.4
м2
1 этаж из 25
282 501 р.
Цена за м2: 5 884 р.
Октябрьский район, пр-т Мира
Аэродромная
7 мин
4 мин
3-комн. кв
55.2
м2
1 этаж из 25
357 678 р.
Цена за м2: 5 782 р.
Октябрьский район, ул. Лейтенанта Кижеватова
Аэродромная
9 мин
5 мин
4-комн. кв
71.2
м2
1 этаж из 25