Выберите валюту для сайта:
BYN
Подать БЕСПЛАТНО

Аренда офиса на пер. Козлова, д. 5/А в Минске, 1368EUR, код 15750

195.5 м2 Партизанский район / Уральская Тракторный завод
4 605 р./мес.
Офис
Город Минск
Район Партизанский район
Микрорайон Уральская
Адрес пер. Козлова, д. 5/А
Метро Тракторный завод
Время до метро пешком 16 мин.
Время до метро на транспорте 9 мин.
Год постройки 2010 г.
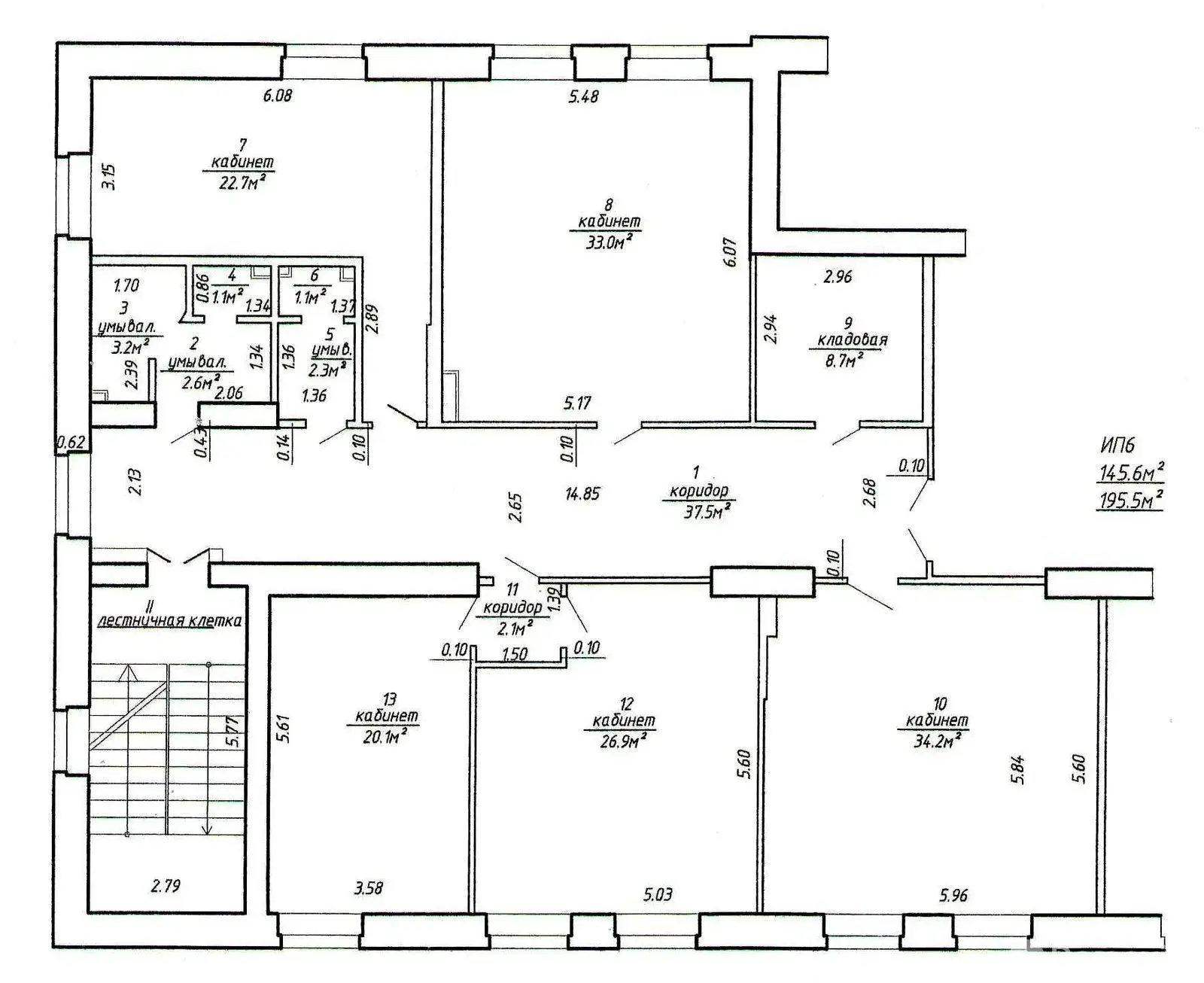
Площадь 195.5 м2

Описание

Административное помещение

г. Минск, пер. Козлова, 5А

Общая площадь: 103.3- 195.5 м2

Арендатор не оплачивает услуги риэлтерской организации!

Помещения расположены на 2 и 3 мансардном этажах административного здания:

• планировка кабинетной системы;

• оборудована кухня, собственный с/у, подсобное пом-е (серверная);

• парковка возле здания;

• удобство местоположения вблизи центра города: 10-15 мин. пешеходной доступности от ст. метро «Площадь Победы», «Тракторный Завод».

Ваш ангент - Смолка Андрей

Код объекта: 15750 Договор с собственником: 30/3а от 2024-03-06 Опубликовано: 09.10.2025 Обновлено: 09.02.2026
Динамика цен за кв. метрДинамика цен
Похожие объекты
Адрес
Комнат
Площадь
Этаж
Цена за м2
Цена
118.24 м2
8 из 10
25 р. за м2
28.8 м2
8 из 10
25 р. за м2
443.2 м2
7 из 7
25 р. за м2
23-комнатная
807 м2
13 из 13
30 р. за м2
433 м2
4 из 4
17 р. за м2

Вы просматривали

24 210 р./мес. 30 р. за м2
Первомайский р-н
4 605 р./мес. 24 р. за м2
Партизанский р-н
200 р./мес. 10 р. за м2
Советский р-н
5 145 р./мес. 35 р. за м2
Фрунзенский р-н
6 059 р./мес. 30 р. за м2
Советский р-н
6 278 р./мес. 35 р. за м2
Первомайский р-н
Офис, 195.5 м2
Минск, пер. Козлова, д. 5/А
4 605 р./мес.
24 р. за м2
Андрей Смолка
Пожалуйста, скажите, что нашли этот объект на Domovita.by
+
Фильтр сохранен