Выберите валюту для сайта:
BYN
Подать БЕСПЛАТНО

Снять офис на пер. Козлова, д. 7/Г в Минске, 837EUR, код 15719

119.6 м2 6 этаж из 10 Партизанский район / Уральская Пролетарская
2 817 р./мес.
Офис
Город Минск
Район Партизанский район
Микрорайон Уральская
Адрес пер. Козлова, д. 7/Г
Метро Пролетарская
Время до метро пешком 15 мин.
Время до метро на транспорте 8 мин.
Год постройки 2004 г.
Площадь 119.6 м2
Этаж 6

Описание

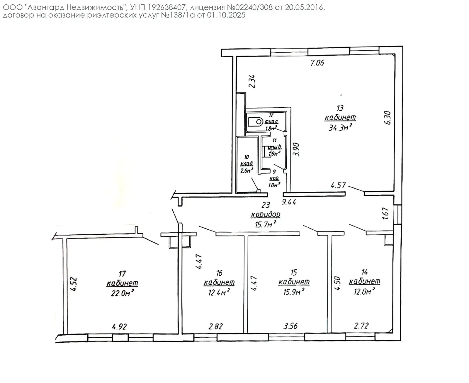
Представляем вашему вниманию офис по адресу пер. Козлова 7Г.
Помещение расположено на 6 из 10 этаже.
Офисный блок площадью 120 м2. Состоит из 5 отдельных помещений, кухни, санузла и серверной.
Свежая отделка помещений. Большие окна, много естественного света.
К офисному помещению прилагаются 3 выделенных парковочных места.
Все необходимые офисные коммуникации в наличии.
Офис в удобной локации. Масса общественного транспорта, зеленая зона, удобный выезд в центр города.
В соседнем здании расположена точка общепита с домашним обеденным меню.

Офис готов к заселению новых арендаторов.

Цена указана с учетом НДС.

Код объекта: 15719 Договор с собственником: 138/1а от 2025-10-01 Опубликовано: 07.10.2025 Обновлено: 09.02.2026
Динамика цен за кв. метрДинамика цен
Похожие объекты
Адрес
Комнат
Площадь
Этаж
Цена за м2
Цена
118.24 м2
8 из 10
25 р. за м2
28.8 м2
8 из 10
25 р. за м2
443.2 м2
7 из 7
25 р. за м2
23-комнатная
807 м2
13 из 13
30 р. за м2
433 м2
4 из 4
17 р. за м2

Вы просматривали

2 817 р./мес. 24 р. за м2
Партизанский р-н
17 166 р./мес. 20 р. за м2
Советский р-н
14 553 р./мес. 17 р. за м2
Советский р-н
2 450 р./мес. 34 р. за м2
Партизанский р-н
68 664 р./мес. 67 р. за м2
Центральный р-н
2 640 р./мес. 24 р. за м2
Центральный р-н
5 296 р./мес. 24 р. за м2
Центральный р-н
Офис, 119.6 м2
Минск, пер. Козлова, д. 7/Г
2 817 р./мес.
24 р. за м2
Андрей
Пожалуйста, скажите, что нашли этот объект на Domovita.by
+
Фильтр сохранен