Выберите валюту для сайта:
BYN
Подать БЕСПЛАТНО

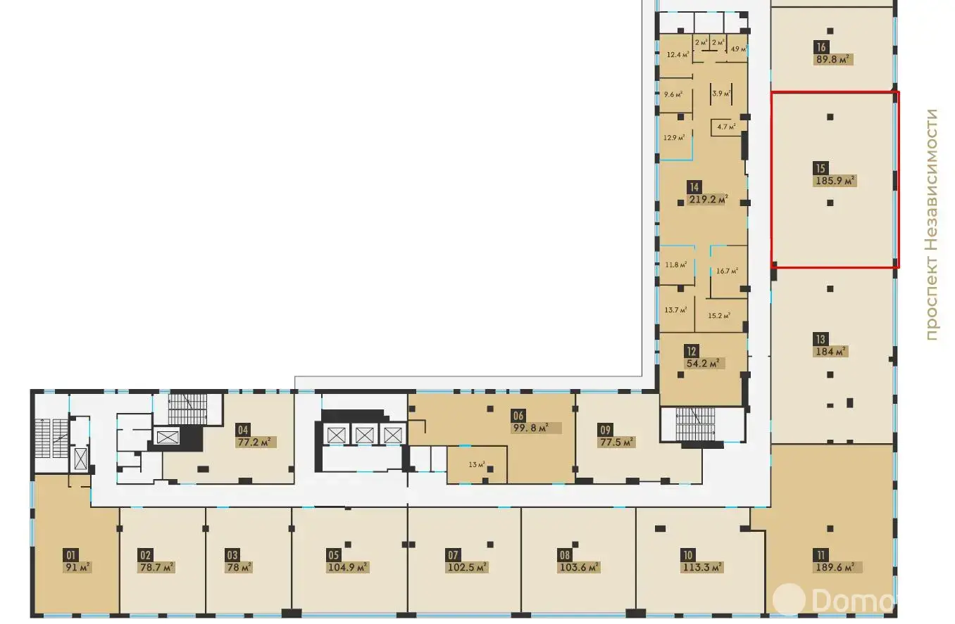
Аренда офиса на ул. Интернациональная, д. 38 в Минске, 2562BYN, код 16125

2600 м2 4 этаж из 8 Центральный район / Ленина Октябрьская
2 562 р./мес.
Офис
Город Минск
Район Центральный район
Микрорайон Ленина
Адрес ул. Интернациональная, д. 38
Метро Октябрьская
Время до метро пешком 3 мин.
Время до метро на транспорте 2 мин.
Площадь 2600 м2
Этаж 4

Описание

«Capital Palace» - это многофункциональный комплекс премиум-класса.

Развитая инфраструктура, транспортная доступность и расположение в самом центре столицы напрямую влияют на репутацию компании и клиентскую лояльность.

Для аренды доступны как небольшие помещения для малых организаций, так и целые этажи для крупных компаний!

Круглосуточный доступ к помещению (24/7).

Подземный паркинг, оборудованный системой видеонаблюдения.

Изюминка помещений - панорамные окна, из которых открываются великолепные виды на городские пейзажи!

Стоимость помещения представлена по акционной цене, включающей НДС и эксплуатационные расходы, и действует в течение первых 6 месяцев аренды.

Код объекта: 16125 Опубликовано: 26.11.2025 Обновлено: 02.03.2026
Динамика цен за кв. метрДинамика цен
Похожие объекты
Адрес
Комнат
Площадь
Этаж
Цена за м2
Цена
2676.5 м2
5 из 8
73 р. за м2
10000 м2
5 из 8
61 р. за м2
262.1 м2
4 из 8
61 р. за м2
2133 м2
5 из 8
61 р. за м2
2530 м2
2 из 8
61 р. за м2

Вы просматривали

10 488 р./мес. 40 р. за м2
Центральный р-н
13 616 р./мес. 74 р. за м2
Центральный р-н
46 301 р./мес. 249 р. за м2
Центральный р-н
2 562 р./мес. 42 р. за м2
Центральный р-н
8 940 р./мес. 38 р. за м2
Советский р-н
Офис, 2600 м2
Минск, ул. Интернациональная, д. 38
2 562 р./мес.
42 р. за м2
Контакт-центр
Пожалуйста, скажите, что нашли этот объект на Domovita.by
+
Фильтр сохранен