Выберите валюту для сайта:
BYN
Подать БЕСПЛАТНО

Снять офис на ул. Мазурова, д. 1 в Минске, 16400BYN, код 14217

400 м2 3 этаж из 7 Фрунзенский район / Сухарево Каменная горка
16 400 р./мес.
Офис
Город Минск
Район Фрунзенский район
Микрорайон Сухарево
Адрес ул. Мазурова, д. 1
Метро Каменная горка
Время до метро пешком 18 мин.
Время до метро на транспорте 10 мин.
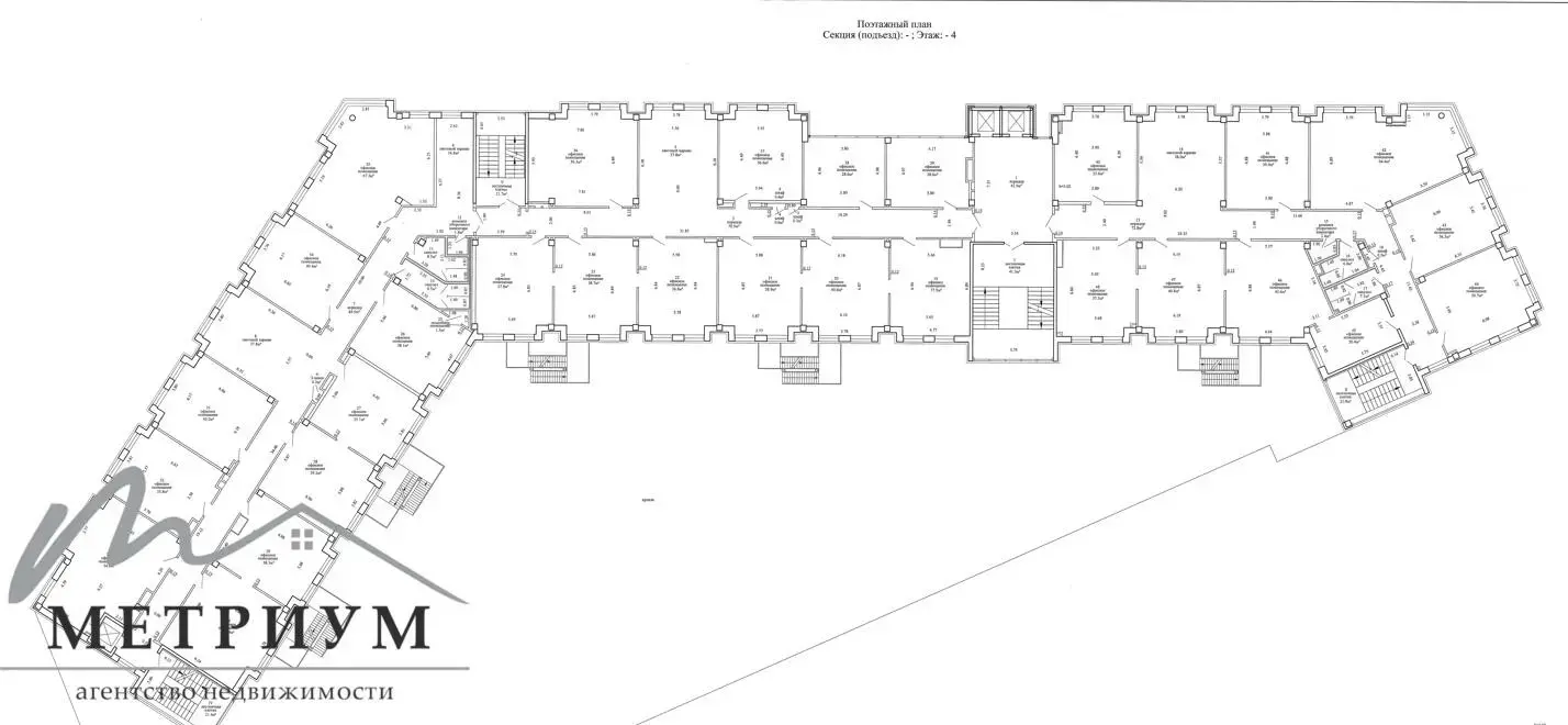
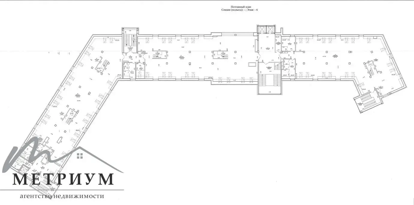
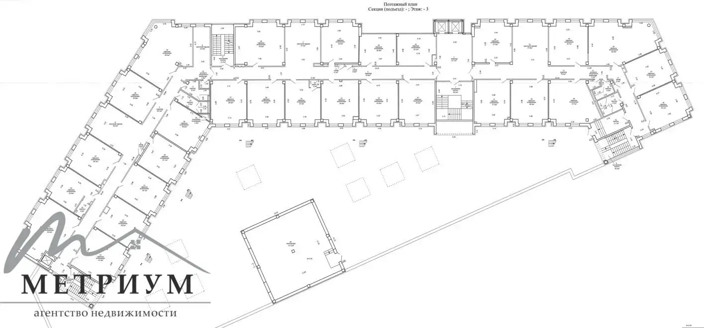
Площадь 400 м2
Этаж 3

Описание

Предлагаем в аренду современные офисные помещения, площадью от 35,1 до 3472,1 м.2, расположенные на 3-7 этажах бизнес-центра «Камелот» по адресу: г. Минск, ул. Мазурова, 1 (недалеко от станции метро «Каменная горка»).

Первые 2 этажа занимает мебельный торговый центр. На верхних этажах расположены офисные помещения с ремонтом (и без) разного формата и метража. Можно снять как отдельный кабинеты/офисные блоки, так и пол этажа либо весь этаж. В некоторых помещениях организовано водоснабжение. На первом этаже имеется общая кухня для сотрудников, а также небольшое кафе.

Объект находится в шаговой доступности от остановки общественного транспорта, в 2-х остановках от ст. метро «Каменная горка». На близлежащей территории расположены автомойка, СТО, парк. Удобный выезд на МКАД.

Общие характеристики:

  помещения расположены на 3-7 этажах здания;

  выполнен отличный современный ремонт;

  санузлы находятся на каждом этаже;

  имеется плоскостная парковка вблизи здания.

   

Инженерные коммуникации:

  действующая приточно-вытяжная вентиляция;

  заведено оптоволокно;

  осуществляется круглосуточная охрана, видеонаблюдение;

  пожарная сигнализация;

  центральное отопление и канализация.

Ставка аренды указана без учета НДС.  При снятии больших площадей предусмотрены скидки.

Звоните! Все подробности по телефону.

 

Договор № 382/1а от 21.11.2024

ООО Агентство недвижимости «Метриум»

УНП 193581536

Лицензия № 02240/425, выдана Министерством Юстиции РБ 27.08.2021

Код объекта: 14217 Договор с собственником: 382/1а от 2024-11-21 Опубликовано: 28.03.2025 Обновлено: 29.11.2025
Динамика цен за кв. метрДинамика цен
Похожие объекты
Адрес
Комнат
Площадь
Этаж
Цена за м2
Цена
1-комнатная
66.6 м2
3 из 3
49 р. за м2
1-комнатная
56 м2
3 из 3
49 р. за м2
1-комнатная
47.5 м2
3 из 3
49 р. за м2
50-комнатная
1710 м2
3 из 7
41 р. за м2
8000 м2
3 из 7
41 р. за м2

Вы просматривали

75 236 р./мес. 35 р. за м2
Московский р-н
16 400 р./мес. 41 р. за м2
Фрунзенский р-н
Офис, 400 м2
Минск, ул. Мазурова, д. 1
16 400 р./мес.
41 р. за м2
Агентство недвижимости Метриум
Пожалуйста, скажите, что нашли этот объект на Domovita.by
+
Фильтр сохранен