Выберите валюту для сайта:
BYN
Подать БЕСПЛАТНО

Снять офис на ул. Мазурова, д. 1 в Минске, 328000BYN, код 14554

8000 м2 3 этаж из 7 Фрунзенский район / Сухарево Каменная горка
328 000 р./мес.
Офис
Город Минск
Район Фрунзенский район
Микрорайон Сухарево
Адрес ул. Мазурова, д. 1
Метро Каменная горка
Время до метро пешком 18 мин.
Время до метро на транспорте 10 мин.
Год постройки 2017 г.
Площадь 8000 м2
Этаж 3

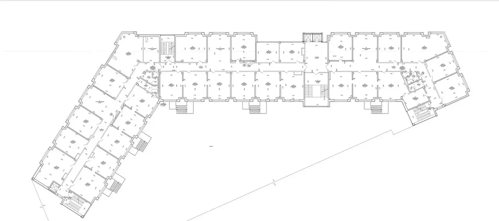
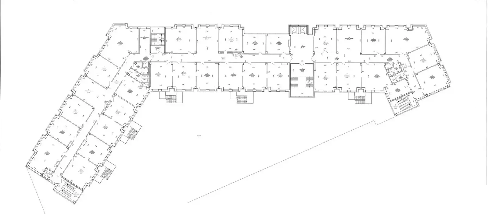
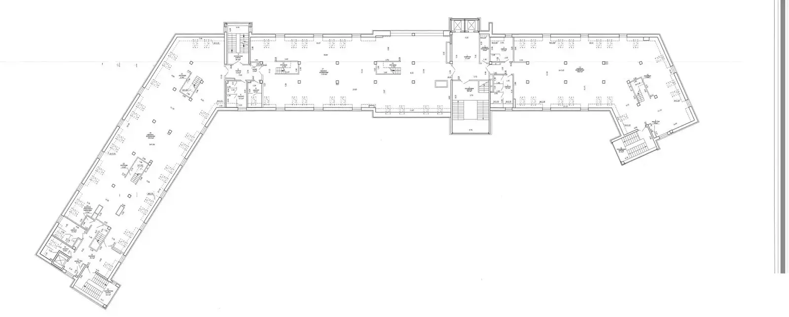
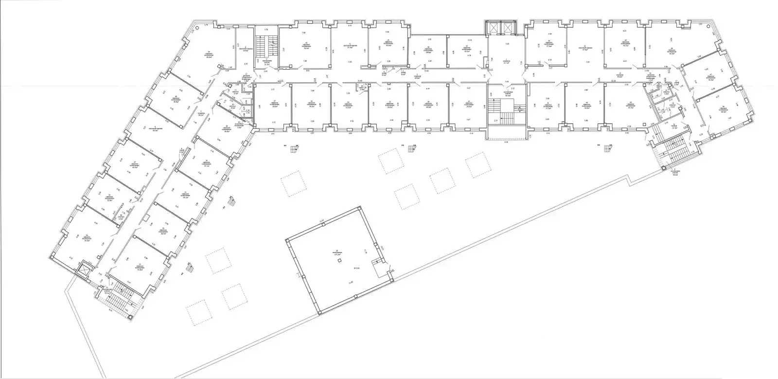
Описание

Предлагаются в аренду офисные помещения в новом бизнес-центре «Камелот».

Новое современное Здание обладает хорошей транспортной доступностью - 1,3 км до станции метро «Каменная горка» или две остановки на общественном транспорте, расстояние до МКАД - 1,5 км.

Коммуникации:

- централизованное отопление, водоснабжение, канализация;

- система автоматической пожарной защиты, система охранной сигнализации;

- приточно вытяжная вентиляция

У Здания есть собственная парковка – бесплатная, огороженная, охраняемая парковка на 750 м/м.

Есть возможность сдачи в аренду помещений по этажам, по «блокам», а также отдельно по комнатам:

С 3й-5й этажи – помещения кабинетного типа, включая наличие объединенных/проходных (до 4х комнат), современная отделка;

6-7 этажи – без отделки, опен спейс формата.

Также есть два помещения с выводом для воды.

Арендатор не оплачивает услуги агентства!

Код объекта: 14554 Договор с собственником: 353/2а от 2024-10-18 Опубликовано: 30.04.2025 Обновлено: 04.12.2025
Динамика цен за кв. метрДинамика цен
Похожие объекты
Адрес
Комнат
Площадь
Этаж
Цена за м2
Цена
1-комнатная
66.6 м2
3 из 3
49 р. за м2
1-комнатная
56 м2
3 из 3
49 р. за м2
1-комнатная
47.5 м2
3 из 3
49 р. за м2
50-комнатная
1710 м2
3 из 7
41 р. за м2
8000 м2
3 из 7
41 р. за м2

Вы просматривали

328 000 р./мес. 41 р. за м2
Фрунзенский р-н
Офис, 8000 м2
Минск, ул. Мазурова, д. 1
328 000 р./мес.
41 р. за м2
Александра
Пожалуйста, скажите, что нашли этот объект на Domovita.by
+
Фильтр сохранен