Выберите валюту для сайта:
BYN
Подать БЕСПЛАТНО

Снять офис на ул. Полиграфическая, д. 31 в Минске, 327EUR, код 13793

36.4 м2 1 этаж из 1 Советский район / Зеленый Луг
1 108 р./мес.
Офис
Город Минск
Район Советский район
Микрорайон Зеленый Луг
Адрес ул. Полиграфическая, д. 31
Площадь 36.4 м2
Этаж 1

Описание

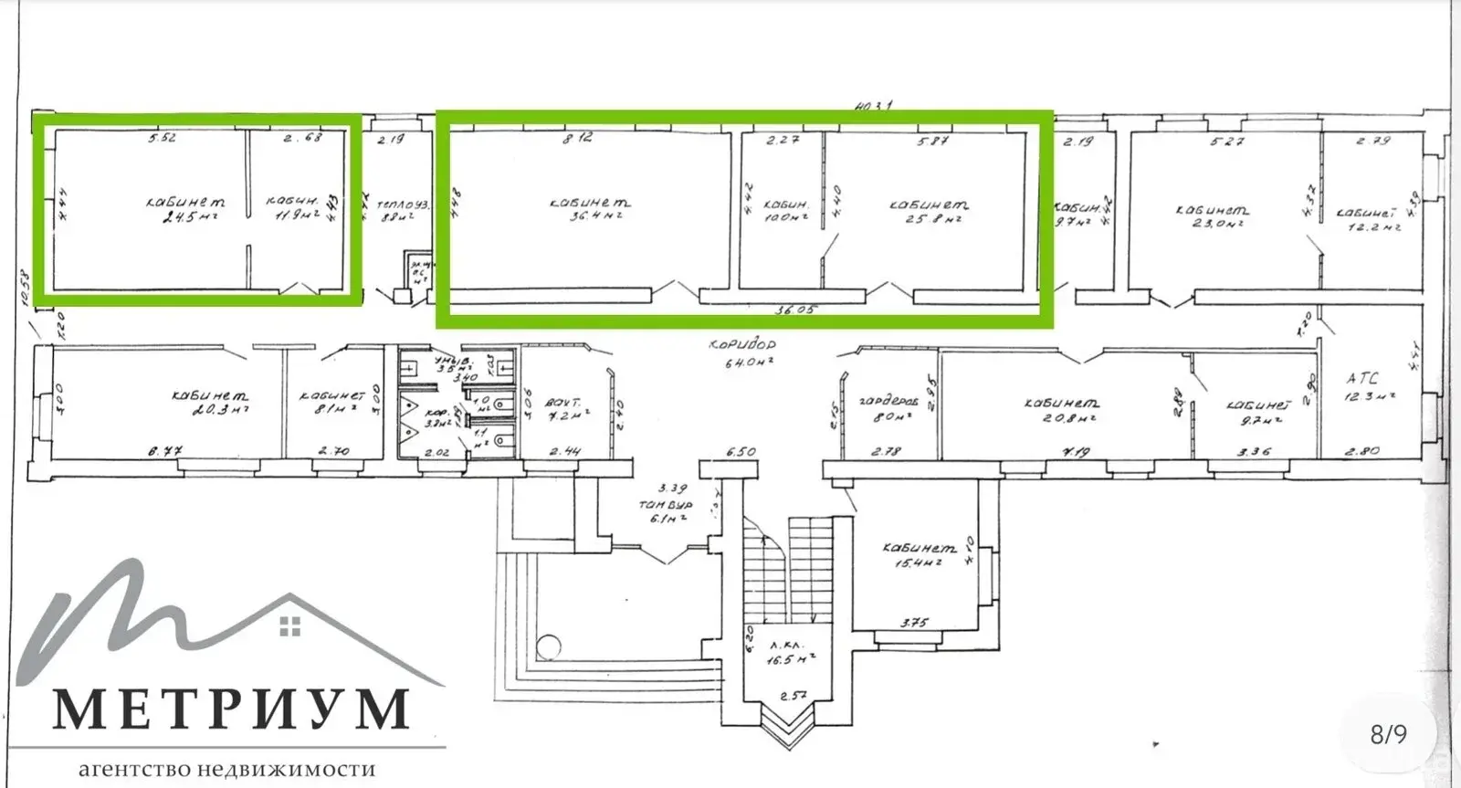
Помещения площадью от 30,5 кв.м (35,2 кв.м; 36,4 кв.м) располагаются на 1 этаже административного здания по адресу ул. Полиграфическая 31. и состоят из двух кабинетов, окна выходят во двор жилого района. Каждый кабинет обустроен отдельной входной дверью.

В помещении выполнен качественный ремонт, пол – плитка, стены окрашены, потолок армстронг, конфигурация офисов обеспечивает отличное естественное освещение. Офисное помещение можно оборудовать мебелью по желанию арендатора.

Локация с хорошо развитой инфраструктурой, отличным транспортным сообщением, рядом остановки общественного транспорта, рядом расположены объекты общественного питания, торговые объекты, объекты услуг, продуктовые магазины.

Помещение оборудовано водоснабжением, отоплением, пожарной сигнализацией. Круглосуточная охрана, администрирование. Санузел располагается рядом на этаже. 2 входа в здание, что позволит разделить потоки клиентов и сотрудников.

Помещение может использоваться для размещения офиса, торгового представительства, сферы услуг, сервисного центра.

- возможность аренды с мебелью

- хорошее транспортное сообщение

- парковка

- пожарная сигнализация

- круглосуточная охрана

- оптоволокно

- доступ 24/7

Арендатор не оплачивает услуги агентства.

Организуем показ в удобное для вас время.

Звоните!

 

Договор № 15/1а от 24.01.2024

ООО Агентство недвижимости «Метриум»

УНП 193581536

Лицензия № 02240/425, выдана Министерством Юстиции РБ 27.08.2021

Код объекта: 13793 Договор с собственником: 15/1а от 2024-01-24 Опубликовано: 11.02.2025 Обновлено: 02.12.2025
Динамика цен за кв. метрДинамика цен
Похожие объекты
Адрес
Комнат
Площадь
Этаж
Цена за м2
Цена
46.6 м2
2 из 2
30 р. за м2
1-комнатная
15.4 м2
1 из 1
34 р. за м2
1-комнатная
36.4 м2
1 из 1
34 р. за м2
1-комнатная
35.8 м2
1 из 1
34 р. за м2
1-комнатная
8 м2
1 из 1
34 р. за м2

Вы просматривали

5 738 р./мес. 54 р. за м2
Октябрьский р-н
1 108 р./мес. 30 р. за м2
Советский р-н
Офис, 36.4 м2
Минск, ул. Полиграфическая, д. 31
1 108 р./мес.
30 р. за м2
Агентство недвижимости Метриум
Пожалуйста, скажите, что нашли этот объект на Domovita.by
+
Фильтр сохранен