Снять офис на ул. Тростенецкая, д. 3 в Минске, 1113BYN, код 16869

74.2 м2 Ленинский район / Серебрянка Пролетарская
1 113 р./мес.
Офис
Город Минск
Район Ленинский район
Микрорайон Серебрянка
Адрес ул. Тростенецкая, д. 3
Метро Пролетарская
Время до метро пешком 10 мин.
Время до метро на транспорте 6 мин.
Площадь 74.2 м2

Описание

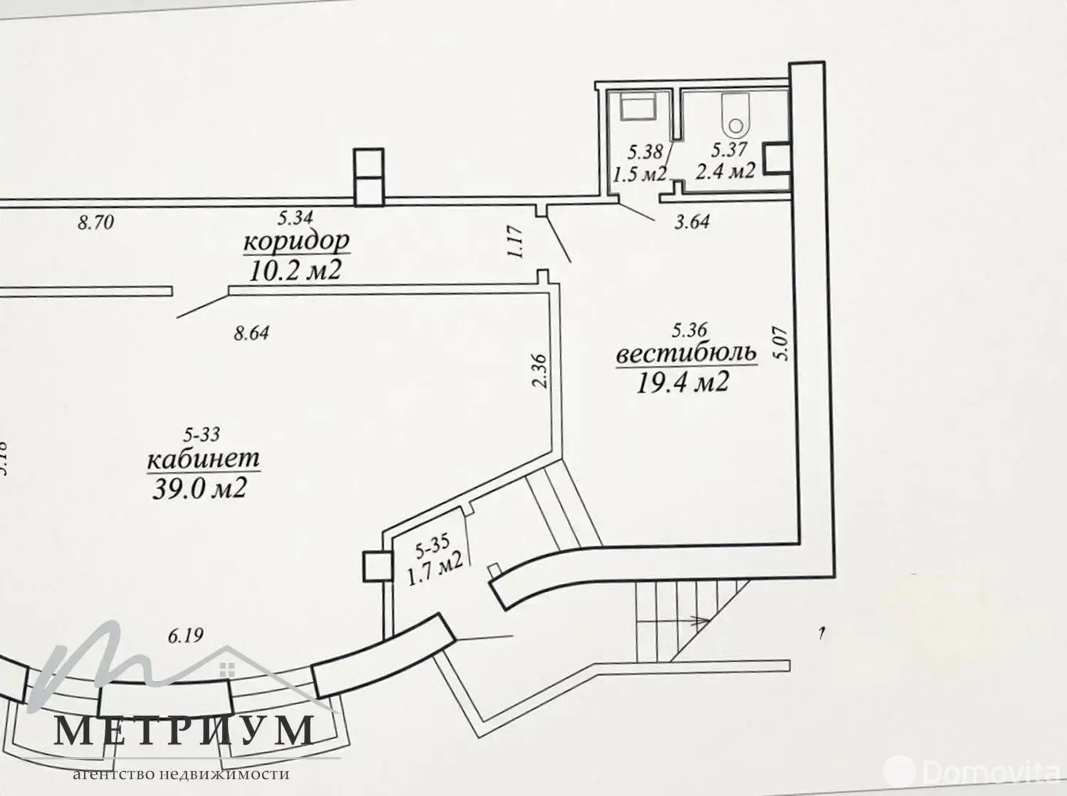
Сдаётся в аренду нежилое помещение 74,2 м2 с отдельным входом с улицы (Тростенецкая, 3, цокольный этаж).

В составе:

  • вестибюль с зоной ресепшена
  • основной кабинет
  • дополнительные помещения
  • собственный санузел
  • доступ 24/7

Без мебели. Гибкая планировка.

Парковка. Рядом «Элема», СТО и деловая инфраструктура. Ближайшая станция метро «Пролетарская».

Просмотр в любое удобное время.

Мы работаем от собственника!

Арендуя этот объект, Вы не оплачиваете комиссию агентству!

 

 

Договор №363/1а от 16.12.2025

ООО Агентство недвижимости «Метриум»

УНП 193581536

Лицензия № 02240/425, выдана Министерством Юстиции РБ 27.08.2021

Код объекта: 16869 Договор с собственником: 363/1а от 2025-12-16 Опубликовано: 18.04.2026 Обновлено: 28.04.2026
Динамика цен за кв. метрДинамика цен
Похожие объекты
Адрес
Комнат
Площадь
Этаж
Цена за м2
Цена
63.2 м2
5 из 6
27 р. за м2
74.2 м2
15 р. за м2

Вы просматривали

1 113 р./мес. 15 р. за м2
Ленинский р-н
Офис, 74.2 м2
Минск, ул. Тростенецкая, д. 3
1 113 р./мес.
15 р. за м2
Агентство недвижимости Метриум
Пожалуйста, скажите, что нашли этот объект на Domovita.by
+
Фильтр сохранен