Выберите валюту для сайта:
BYN
Подать БЕСПЛАТНО

Купить офис на пер. Козлова, д. 25 в Минске, 1702440USD, код 8426

945.8 м2 3 этаж из 9 Партизанский район / Гикало Тракторный завод
5 023 560 р.
Офис
Город Минск
Район Партизанский район
Микрорайон Гикало
Адрес пер. Козлова, д. 25
Метро Тракторный завод
Время до метро пешком 23 мин.
Время до метро на транспорте 12 мин.
Год постройки 2018 г.
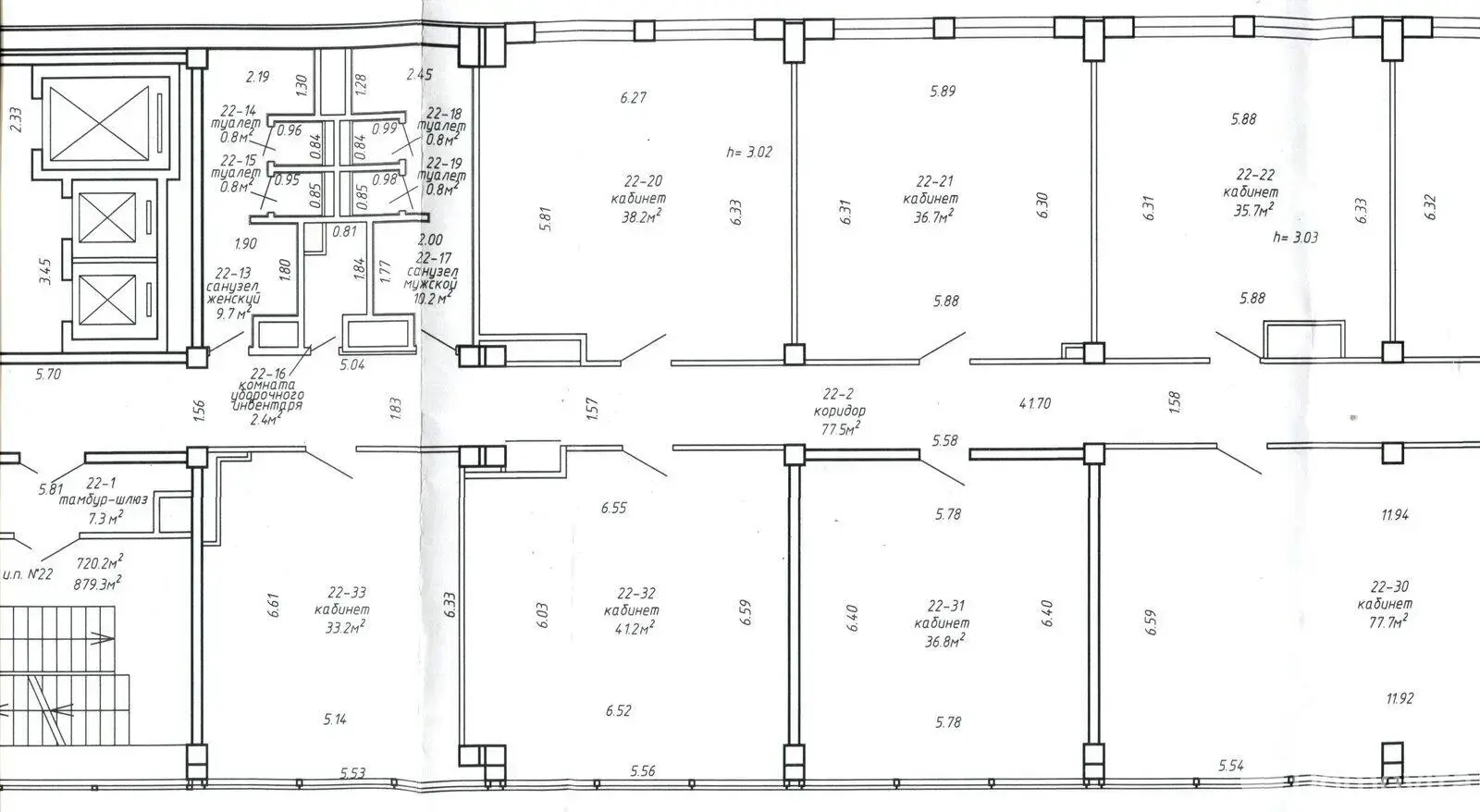
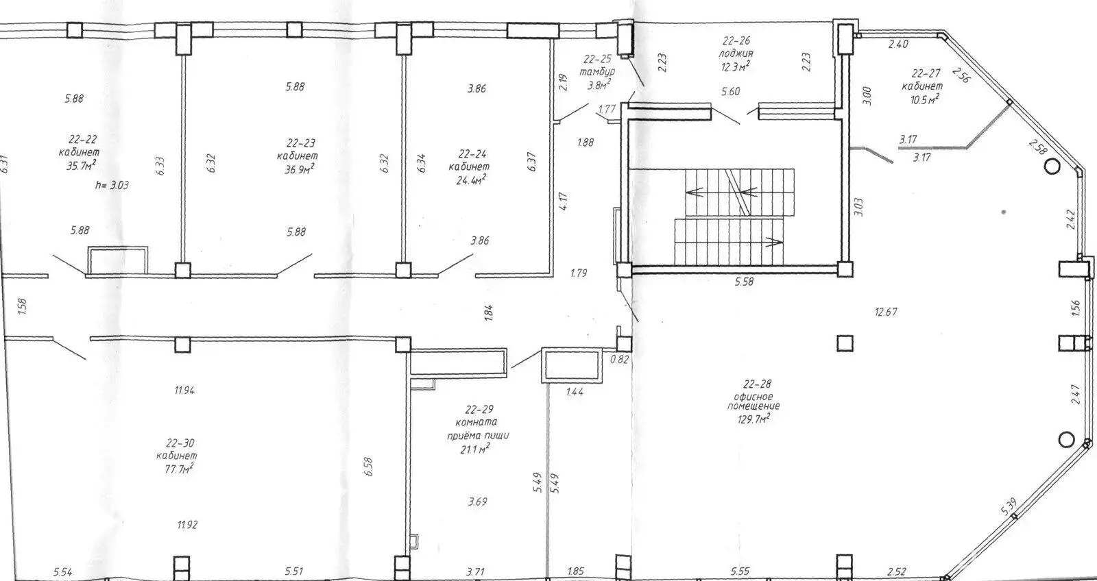
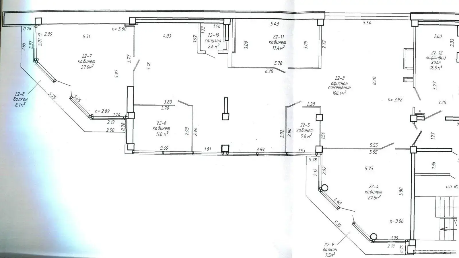
Площадь 945.8 м2
Этаж 3

Описание

Офис в новом БЦ «Forum Plaza» 

г. Минск, пер. Козлова, 25

Общая площадь: 945,8 м2 (3-й этаж)

Покупатель  не оплачивает услуги риэлтерской организации!

• панорамное остекление, высокий уровень инсоляции;

• приточно-вытяжная система вентиляции, кондиционирование;

• оптоволоконные коммуникации (разведены сети);

• высота потолков: от 2.7 до 6 м.

• отдельные входы с этажей;

• в бизнес-центре: видеонаблюдение, круглосуточная охрана, 3 лифта KONE (Финляндия), презентабельная входная группа и зона ресепшен;

• доступ 24/7. 

Инфраструктуру деловой среды бизнес-центра также формируют: собственная служба эксплуатации зданием, кафе, конференц-зал, охраняемая парковка, АЗС, автомоечный комплекс. 

Преимущество местоположения: центральная часть города, пересечение 3-х магистралей: ул.Козлова-Академическая-пер.Козлова. Рядом находится водно-парковая зона, Ботанический сад, в 2-х км. несколько станций метро («Площадь Победы», «Пл. Я.Купалы», «Академия наук», «Тракторный завод»).

Ваш агент - Смолка Андрей

Код объекта: 8426 Договор с собственником: 11/4 от 2025-03-12 Опубликовано: 03.04.2025 Обновлено: 05.03.2026
Динамика цен за кв. метрДинамика цен
Похожие объекты
Адрес
Комнат
Площадь
Этаж
Цена за м2
Цена
3028.7 м2
1 из 9
4 426 р. за м2
415.1 м2
1 из 9
5 311 р. за м2
836.5 м2
2 из 9
5 311 р. за м2
785.8 м2
9 из 9
5 311 р. за м2
1251.6 м2
1 из 9
5 311 р. за м2

Вы просматривали

5 023 560 р. 5 311 р. за м2
Партизанский р-н
3 245 880 р. 1 003 р. за м2
Центральный р-н
427 866 р. 7 119 р. за м2
Московский р-н
2 936 046 р. 7 569 р. за м2
Московский р-н
2 936 046 р. 7 569 р. за м2
Московский р-н
567 734 р. 5 902 р. за м2
Московский р-н
647 306 р. 8 561 р. за м2
Первомайский р-н
Офис, 945.8 м2
Минск, пер. Козлова, д. 25
5 023 560 р.
5 311 р. за м2
Смолка Андрей
Пожалуйста, скажите, что нашли этот объект на Domovita.by
+
Фильтр сохранен