Выберите валюту для сайта:
BYN
Подать БЕСПЛАТНО

Купить офис на пер. Козлова, д. 25 в Минске, 2252880USD, код 10008

1251.6 м2 1 этаж из 9 Партизанский район / Гикало Тракторный завод
6 653 881 р.
Офис
Город Минск
Район Партизанский район
Микрорайон Гикало
Адрес пер. Козлова, д. 25
Метро Тракторный завод
Время до метро пешком 23 мин.
Время до метро на транспорте 12 мин.
Площадь 1251.6 м2
Этаж 1

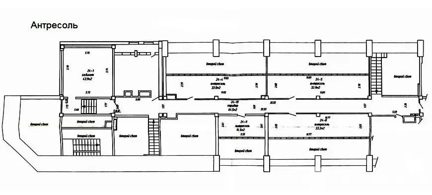
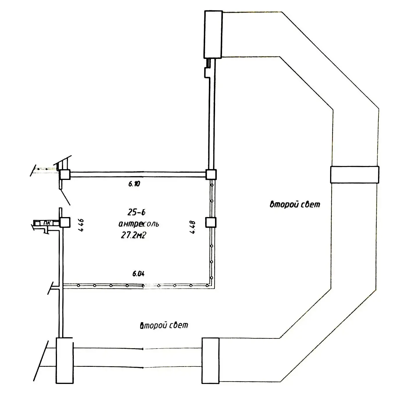
Описание

Продажа помещений с отдельным входом в БЦ «Forum Plaza»

Адрес: г. Минск, пер. Козлова, 25

Площадь:
 1 251,6 м2
- 415,1 м2 (1,2-й этаж)
- 836,5 м2 (2-й этаж с антресолью)

Покупатель не оплачивает услуги риэлтерской организации!

Помещения с антресолью расположено на 1, 2-м уровне бизнес-центра «Forum Plaza»:
• обеденный зал на 1-м этаже - 244.2 м2;
• высота потолков: до 5 м;
• приточно-вытяжная система вентиляции, кондиционирование;
• панорамное остекление, высокий уровень инсоляции;
• хороший ремонт, приточно-вытяжная система вентиляции, кондиционирование;
• оптоволоконные коммуникации (разведены сети);
• высота потолков: от 2.7 до 6 м.
• предусмотрен санузел;
• отдельные входы в помещение с этажей;
• в бизнес-центре: видеонаблюдение, круглосуточная охрана, 3 лифта KONE (Финляндия), презентабельная входная группа и зона ресепшен;
• доступ - 24/7.

Инфраструктуру деловой среды бизнес-центра также формируют: собственная служба эксплуатации зданием, кафе, конференц-зал, охраняемая парковка, собственная парковка вокруг здания АЗС, автомоечный комплекс.

Преимущество местоположения: центральная часть города, пересечение 3-х магистралей: улицы Козлова, Академической и переулка Козлова. Рядом находится водно-парковая зона, Ботанический сад, в 2 км. находятся несколько станций метро: "Площадь Победы", "Пл. Я.Купалы", Академия наук", "Тракторный завод".


Ваш агент - Смолка Андрей

№11/4 от 12.03.2025 по 11.03.2027

Код объекта: 10008 Договор с собственником: 11/4 от 2025-03-12 Опубликовано: 31.01.2026 Обновлено: 03.03.2026
Динамика цен за кв. метрДинамика цен
Похожие объекты
Адрес
Комнат
Площадь
Этаж
Цена за м2
Цена
3028.7 м2
1 из 9
4 430 р. за м2
415.1 м2
1 из 9
5 316 р. за м2
836.5 м2
2 из 9
5 316 р. за м2
785.8 м2
9 из 9
5 316 р. за м2
945.8 м2
3 из 9
5 316 р. за м2

Вы просматривали

6 653 881 р. 5 316 р. за м2
Партизанский р-н
811 622 р. 7 088 р. за м2
Московский р-н
Офис, 1251.6 м2
Минск, пер. Козлова, д. 25
6 653 881 р.
5 316 р. за м2
ООО "Сильван-Инвест"
Пожалуйста, скажите, что нашли этот объект на Domovita.by
+
Фильтр сохранен