Выберите валюту для сайта:
BYN
Подать БЕСПЛАТНО

Купить офис на пер. Козлова, д. 25 в Минске, 1543500USD, код 7028

882 м2 4 этаж из 10 Партизанский район / Гикало Тракторный завод
4 869 480 р.
4 421 201 р.
Офис
Город Минск
Район Партизанский район
Микрорайон Гикало
Адрес пер. Козлова, д. 25
Метро Тракторный завод
Время до метро пешком 23 мин.
Время до метро на транспорте 12 мин.
Год постройки 2018 г.
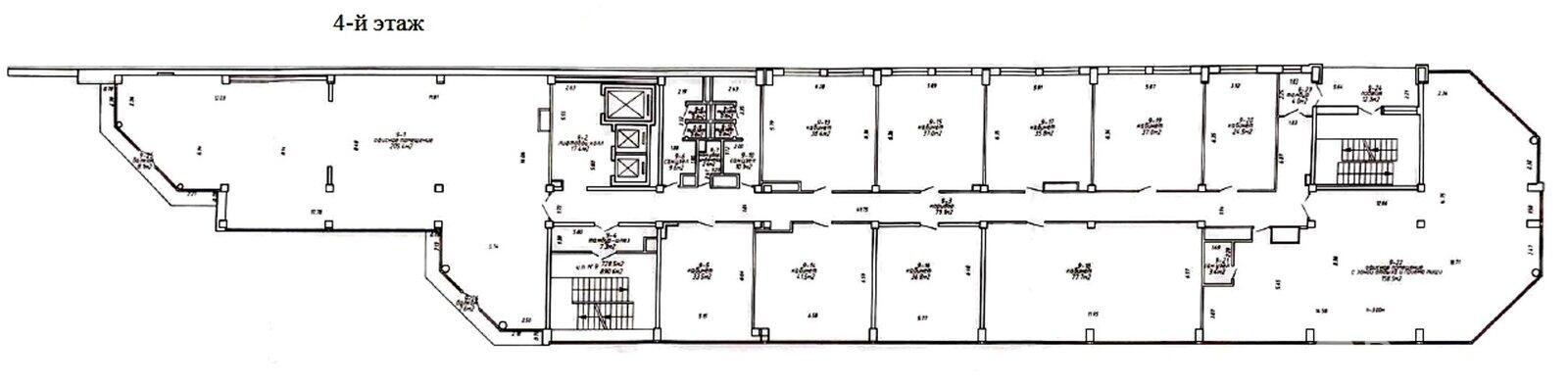
Площадь 882 м2
Этаж 4
Удобства
Лифт
Кондиционер
Видеонаблюдение
Парковка

Описание

Офис в новом БЦ «Forum Plaza»

г. Минск, пер. Козлова, 25

Общая площадь: 882 м2 (4-й этаж)

Покупатель не оплачивает услуги риэлтерской организации!

• панорамное остекление, высокий уровень инсоляции;

• приточно-вытяжная система вентиляции, кондиционирование;

• оптоволоконные коммуникации (разведены сети);

• высота потолков: от 2.7 м.

• отдельные входы с этажей;

• в бизнес-центре: видеонаблюдение, круглосуточная охрана, 3 лифта KONE (Финляндия), презентабельная входная группа и зона ресепшен.

Инфраструктуру деловой среды бизнес-центра также формируют: собственная служба эксплуатации зданием, кафе, конференц-зал, охраняемая парковка, АЗС, автомоечный комплекс.

Преимущество местоположения: центральная часть города, пересечение 3-х магистралей: ул.Козлова-Академическая-пер.Козлова. Рядом находится водно-парковая зона, Ботанический сад, в 2-х км. несколько станций метро («Площадь Победы», «Пл. Я.Купалы», «Академия наук», «Тракторный завод»).

Подробнее см. на САЙТЕ  www.silvan7800.by

+375(44) 7-800-863, +375(29) 7-800-863

Короткий номер (МТС, А1, Life): 7-800

Код объекта: 7028 Договор с собственником: 51/4 от 2024-03-06 Опубликовано: 25.03.2024 Обновлено: 13.02.2026
Динамика цен за кв. метрДинамика цен
Похожие объекты
Адрес
Комнат
Площадь
Этаж
Цена за м2
Цена
3028.7 м2
1 из 9
4 297 р. за м2
415.1 м2
1 из 9
5 156 р. за м2
836.5 м2
2 из 9
5 156 р. за м2
785.8 м2
9 из 9
5 156 р. за м2
945.8 м2
3 из 9
5 156 р. за м2

Вы просматривали

4 312 927 р. 5 156 р. за м2
Партизанский р-н
4 051 522 р. 5 156 р. за м2
Партизанский р-н
4 421 201 р. 5 013 р. за м2
Партизанский р-н
282 577 р. 2 722 р. за м2
Партизанский р-н
739 875 р. 2 864 р. за м2
Центральный р-н
2 850 078 р. 7 347 р. за м2
Московский р-н
673 134 р. 3 094 р. за м2
Центральный р-н
Офис, 882 м2
Минск, пер. Козлова, д. 25
4 421 201 р.
5 013 р. за м2
Андрей Смолка
Пожалуйста, скажите, что нашли этот объект на Domovita.by
+
Фильтр сохранен