Выберите валюту для сайта:
BYN
Подать БЕСПЛАТНО

Купить офис на пер. Козлова, д. 5/а в Минске, 1554920EUR, код 8599

1978.2 м2 1 этаж из 3 Партизанский район / Уральская Тракторный завод
5 267 292 р.
Офис
Город Минск
Район Партизанский район
Микрорайон Уральская
Адрес пер. Козлова, д. 5/а
Метро Тракторный завод
Время до метро пешком 16 мин.
Время до метро на транспорте 9 мин.
Год постройки 2010 г.
Площадь 1978.2 м2
Этаж 1

Описание

Продаются офисные помещения в 3-х этажном отдельно стоящем многофункциональном здании, общей площадью 1978,2 м2 по адресу: пер. Козлова, дом 5А.

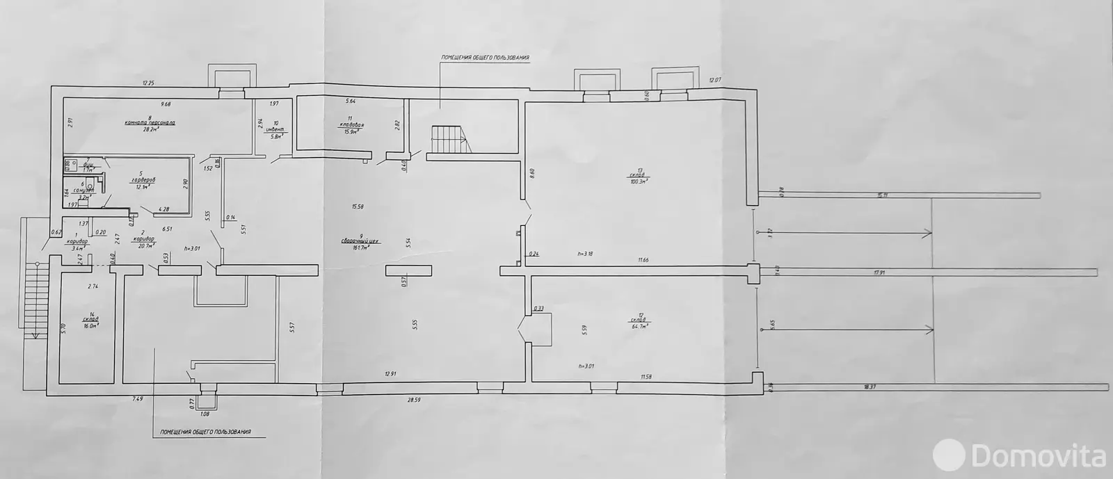
На цокольном этаже расположено производственное помещение с ремонтом.

Помещение включает в себя: цех, производство, кладовую, гардероб, комнату приема пищи, душ, санузел, коридор.

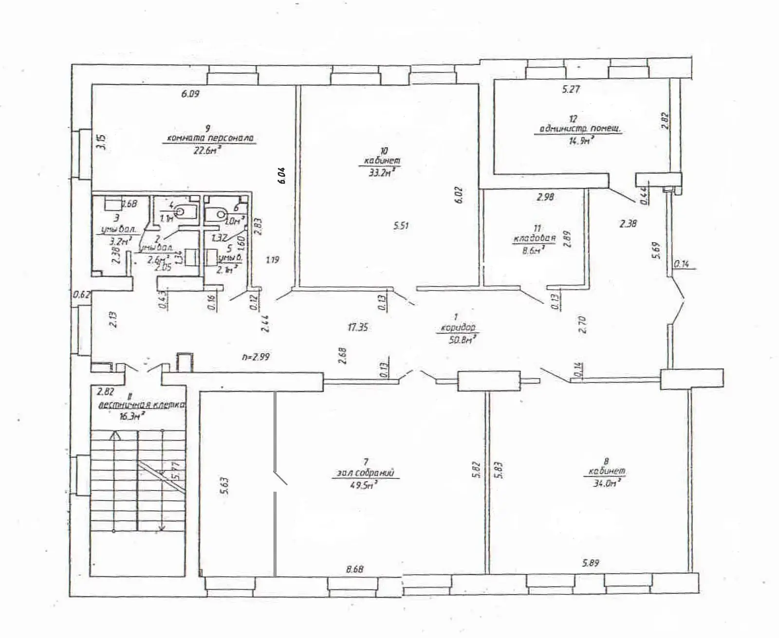
На 1-ом этаже расположено административно-торговое помещение с хорошим ремонтом, с естественным освещением. Имеет 3 отдельных входа с улицы (через центральный вход в здание, боковой с торца и ворота с рампы).

Стеклянными перегородками выделено несколько кабинетов (кабинет руководителя, переговорная), есть кухня и комната для приема пищи, тамбур, душ, отдельные санузлы.

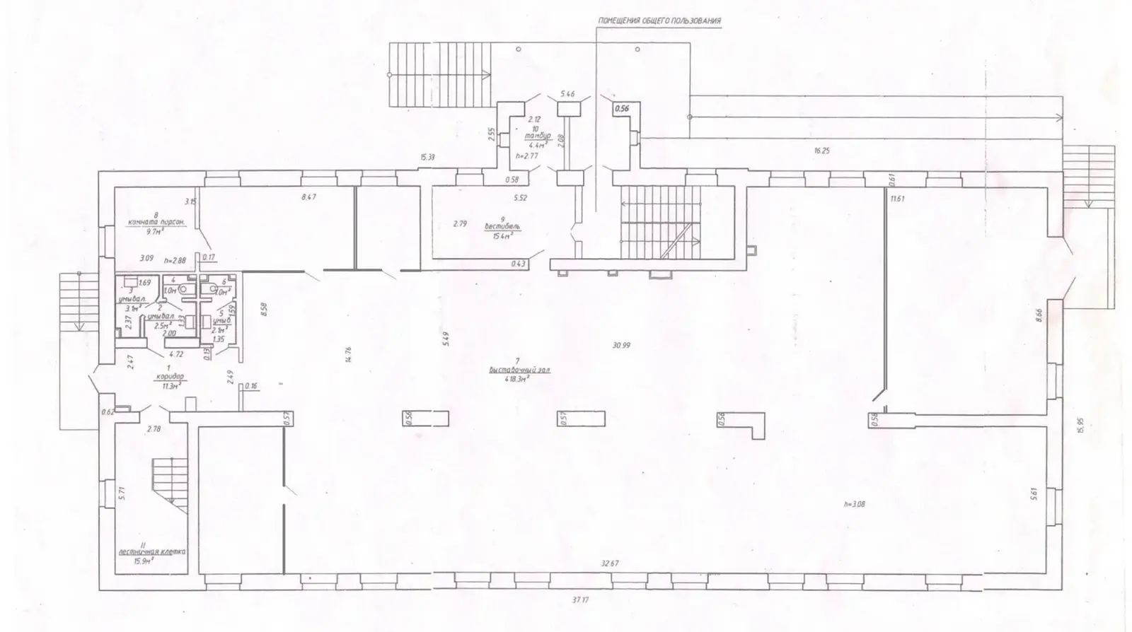
На 2-ом этаже расположено административно-торговое помещение (офисный блок) с хорошим ремонтом и естественным освещением. Планировка кабинетная, включает в себя 5 раздельных кабинетов различной площади, кладовую, коридор, раздельные санузлы, лестницы.

- Доступ 24/7,
- Высота потолка 3 м,
- Электричество,
- Вода,
- Естественное освещение,
- Канализация,
- Интернет,
- Пожарная сигнализация,
- имеет 2 отдельных входа (с улицы и через центральный вход в здание)
- 2 грузовых въезда.

Покупатель не оплачивает услуги агентства!

Код объекта: 8599 Договор с собственником: 1262/2 от 2024-05-27 Опубликовано: 30.04.2025 Обновлено: 04.12.2025
Динамика цен за кв. метрДинамика цен
Похожие объекты
Адрес
Комнат
Площадь
Этаж
Цена за м2
Цена
103.8 м2
2 из 3
2 710 р. за м2
195.5 м2
3 из 3
2 710 р. за м2
110.9 м2
2 из 3
2 710 р. за м2
109.4 м2
3 из 3
2 710 р. за м2
103.3 м2
3 из 3
2 710 р. за м2

Вы просматривали

5 267 292 р. 2 663 р. за м2
Партизанский р-н
Офис, 1978.2 м2
Минск, пер. Козлова, д. 5/а
5 267 292 р.
2 663 р. за м2
Елена
Пожалуйста, скажите, что нашли этот объект на Domovita.by
+
Фильтр сохранен