Выберите валюту для сайта:
BYN
Подать БЕСПЛАТНО

Купить офис на ул. Аэродромная, д. 125 в Минске, 104025USD, код 8706

109.5 м2 4 этаж из 4 Октябрьский район / Воронянского Ковальская слобода
328 690 р.
297 969 р.
Офис
Город Минск
Район Октябрьский район
Микрорайон Воронянского
Адрес ул. Аэродромная, д. 125
Метро Ковальская слобода
Время до метро пешком 10 мин.
Время до метро на транспорте 6 мин.
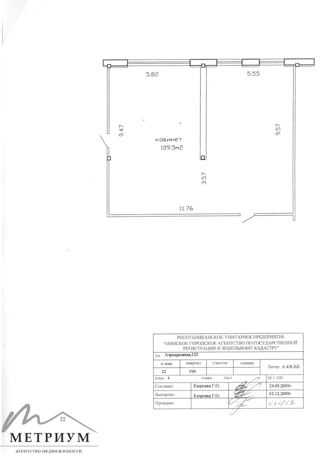
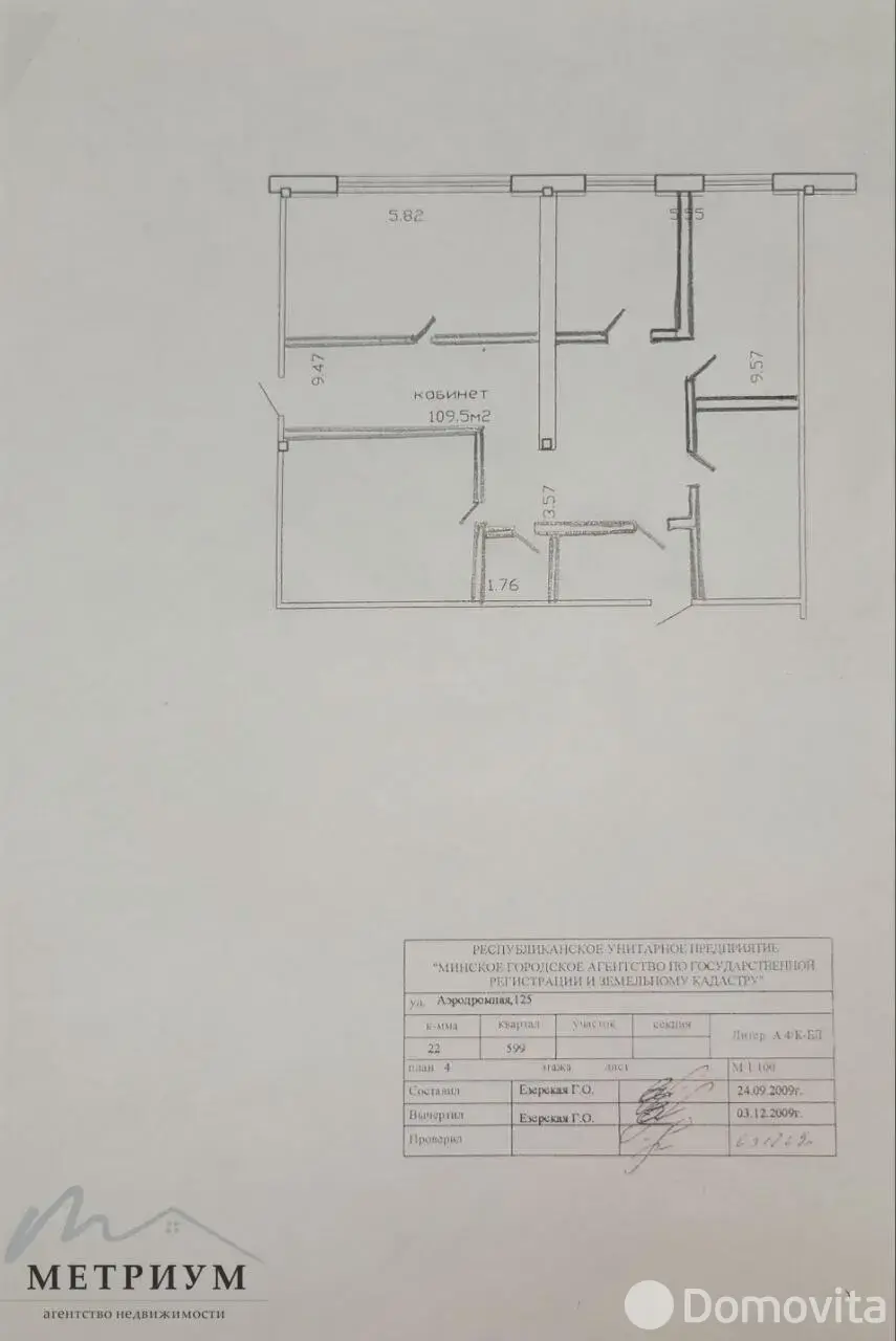
Площадь 109.5 м2
Этаж 4

Описание

Покупатель не оплачивает услуги агентства.

  Предлагаем к покупке офис площадью 109,5 кв.м., расположенный на 4 этаже 4-х этажного здания, по улице Аэродромная 125, рядом с «Атлант-М». На сегодня офисное помещение с арендатором. Помещение полностью оснащено электричеством и отоплением, офисная отделка (пол - плитка, ламинат; стены – обои; подвесной потолок; перегородки ПВХ+стекло; металлическая входная дверь). На объекте установлена центральная пожарная сигнализация, кондиционеры 4 шт. на объект, скоростной интернет А1. Мебель по согласованию с арендодателем. В здание доступ 24/7, ведется видеонаблюдение. Рядом бесплатная парковка. В шаговой доступности станция метро «Ковальская Слобода».

Помещение подойдет как для офиса, так и под сферу услуг.

 

 

 

 

 

 

Договор № 178/1 от 05.03.2024г.

ООО Агентство недвижимости «Метриум»

УНП 193581536

Лицензия № 02240/425, выдана Министерством Юстиции РБ 27.08.2021

Код объекта: 8706 Договор с собственником: 187/1 от 2024-03-05 Опубликовано: 14.05.2025 Обновлено: 12.02.2026
Динамика цен за кв. метрДинамика цен
Похожие объекты
Адрес
Комнат
Площадь
Этаж
Цена за м2
Цена
109.5 м2
4 из 4
2 721 р. за м2
109.5 м2
4 из 4
2 721 р. за м2

Вы просматривали

297 969 р. 2 721 р. за м2
Октябрьский р-н
297 969 р. 2 721 р. за м2
Октябрьский р-н
2 619 207 р. 5 729 р. за м2
Московский р-н
1 151 632 р. 3 151 р. за м2
Центральный р-н
600 564 р. 2 721 р. за м2
Центральный р-н
1 270 934 р. 4 297 р. за м2
Московский р-н
1 993 622 р. 2 109 р. за м2
Московский р-н
316 470 р. 7 080 р. за м2
Октябрьский р-н
Офис, 109.5 м2
Минск, ул. Аэродромная, д. 125
297 969 р.
2 721 р. за м2
Агентство недвижимости Метриум
Пожалуйста, скажите, что нашли этот объект на Domovita.by
+
Фильтр сохранен