Выберите валюту для сайта:
BYN
Подать БЕСПЛАТНО

Купить офис на ул. Домбровская, д. 9 в Минске, 117750USD, код 9250

94.2 м2 3 этаж из 13 Фрунзенский район / Кунцевщина Каменная горка
340 969 р.
Офис
Город Минск
Район Фрунзенский район
Микрорайон Кунцевщина
Адрес ул. Домбровская, д. 9
Метро Каменная горка
Время до метро пешком 16 мин.
Время до метро на транспорте 9 мин.
Год постройки 2011 г.
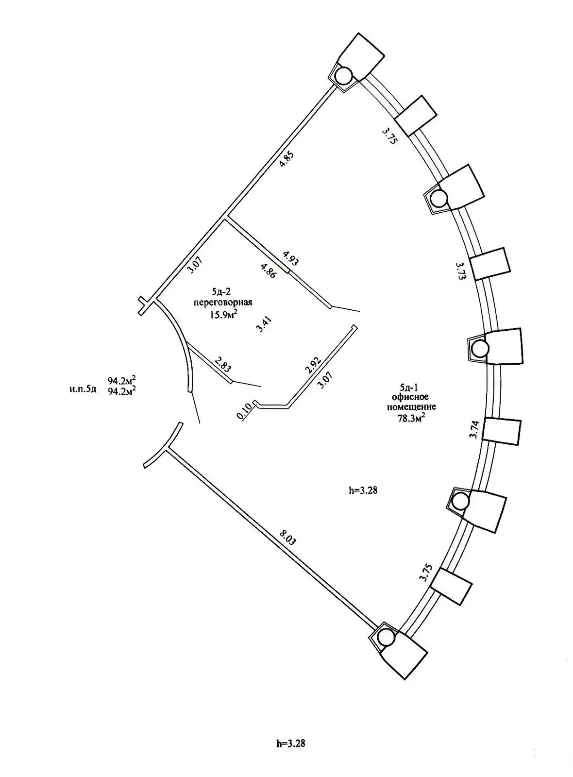
Площадь 94.2 м2
Этаж 3

Описание

Продается офисное помещение 94.2 кв.м. в бизнес-центре «SkyTowers»

Адрес: ул. Домбровская, 9. На общем плане это помещение № 5д. 3 этаж.

Оптимальное решение для стабильного дохода. Помещение уже арендовано - вы получаете готовый бизнес-актив с регулярными денежными поступлениями.

Характеристики помещения:

  • Сбалансированная площадь для комфортной работы коллектива
  • Удобная планировка с возможностью зонирования
  • Качественные материалы отделки бизнес-класса
  • Индивидуальная система кондиционирования
  • Раздельные санузлы и комфортные зоны отдыха

Преимущества бизнес-центра:

  • Контроль доступа 24/7
  • Охраняемая парковка для сотрудников и гостей
  • Современные лифты с быстрым доступом
  • Кафе и банковские услуги в здании

Инвестиционные преимущества:

  • Стабильная доходность без дополнительных вложений
  • Привлекательная стоимость квадратного метра
  • Ликвидность объекта в престижной локации
  • Профессиональное управление зданием

Перспективный актив для долгосрочных инвестиций.

Идеально подходит для размещения штаб-квартиры или представительства.

Лицензия: 02240/446 МЮ РБ, 11.07.2022

Код объекта: 9250 Договор с собственником: 723/1 от 2025-09-25 Опубликовано: 26.09.2025 Обновлено: 27.11.2025
Динамика цен за кв. метрДинамика цен
Похожие объекты
Адрес
Комнат
Площадь
Этаж
Цена за м2
Цена
1335.3 м2
5 из 13
2 172 р. за м2
1-комнатная
201.2 м2
3 из 13
3 475 р. за м2
1-комнатная
77.4 м2
3 из 13
3 764 р. за м2
1-комнатная
74.6 м2
3 из 13
3 620 р. за м2
89 м2
3 из 13
3 620 р. за м2

Вы просматривали

340 969 р. 3 620 р. за м2
Фрунзенский р-н
723 925 р. 5 732 р. за м2
Центральный р-н
3 091 952 р. 6 763 р. за м2
Московский р-н
639 950 р. 4 051 р. за м2
Ленинский р-н
314 470 р. 7 035 р. за м2
Октябрьский р-н
314 470 р. 7 035 р. за м2
Октябрьский р-н
Офис, 94.2 м2
Минск, ул. Домбровская, д. 9
340 969 р.
3 620 р. за м2
Фаттория
Пожалуйста, скажите, что нашли этот объект на Domovita.by
+
Фильтр сохранен