Выберите валюту для сайта:
BYN
Подать БЕСПЛАТНО

Купить офис на ул. Игоря Лученка, д. 29 в Минске, 177000USD, код 10073

72.8 м2 1 этаж из 25 Октябрьский район / Маяковского Аэродромная
511 459 р.
Офис
Город Минск
Район Октябрьский район
Микрорайон Маяковского
Адрес ул. Игоря Лученка, д. 29
Метро Аэродромная
Время до метро пешком 10 мин.
Время до метро на транспорте 6 мин.
Год постройки 2023 г.
Площадь 72.8 м2
Помещений 1
Этаж 1

Описание

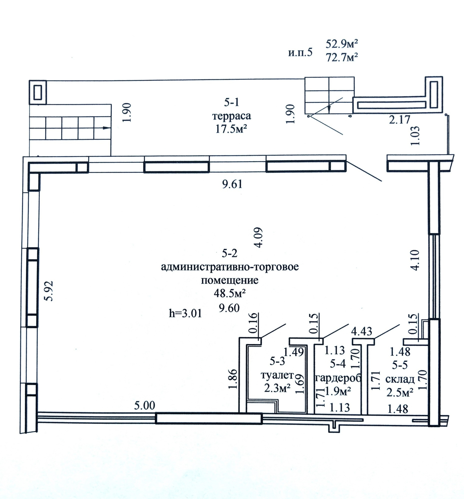
Продаётся торговое помещение на ул. И. Лученка 29 (дом «Гавана»), общей площадью 72,7 кв.м. Дом расположен в быстроразвивающимся и плотно населенном районе «Minsk World». Торговое помещение расположено на первом этаже 25-этажного жилого дома, с отдельным входом, что обеспечивает ежедневный доступ 24/7. Помещение удобно расположено, угловое: окна выходят на улицу Ж. Алфёрова и на улицу И. Лученка 27. Высокие потолки, панорамные окна. Чистовая отделка. В помещении обустроена: 1) приточно-вытяжная вентиляция; 2) установлена пожарная сигнализация; 3) установлен кондиционер. Есть летняя веранда для обустройства столиков при использовании помещения под кафе. В шаговой доступности остановки общественного транспорта, большой пешеходный и автомобильный трафик, в 2024 году открылась станция метро «Аэродромная». В помещение заведено электричество (мощность 10 КВТ), отопление, водоснабжение, оборудован санузел,. Есть возможность адаптировать помещение под свой бизнес. Предлагаемая площадь подойдет под различные сферы услуг: магазины, аптеки, кофейни, услуги и другие виды бизнеса.
Код объекта: 10073 Договор с собственником: #144/1 от 30.09.2025 Опубликовано: 18.02.2026 Обновлено: 18.02.2026
Динамика цен за кв. метрДинамика цен
Похожие объекты
Адрес
Комнат
Площадь
Этаж
Цена за м2
Цена
47.3 м2
4 326 р. за м2
46.2 м2
6 505 р. за м2
81 м2
6 170 р. за м2
48.6 м2
6 505 р. за м2
1190.1 м2
1 из 4
1 575 р. за м2

Вы просматривали

511 459 р. 7 026 р. за м2
Октябрьский р-н
Офис, 72.8 м2
Минск, ул. Игоря Лученка, д. 29
511 459 р.
7 026 р. за м2
Геннадий
Пожалуйста, скажите, что нашли этот объект на Domovita.by
+
Фильтр сохранен