Выберите валюту для сайта:
BYN
Подать БЕСПЛАТНО

Купить офис на ул. Краснозвездная, д. 18/Б в Минске, 108500USD, код 4784

86.8 м2 6 этаж из 8 Первомайский район / Гикало Площадь Якуба Коласа
314 183 р.
Офис
Город Минск
Район Первомайский район
Микрорайон Гикало
Адрес ул. Краснозвездная, д. 18/Б
Метро Площадь Якуба Коласа
Время до метро пешком 14 мин.
Время до метро на транспорте 8 мин.
Год постройки 2008 г.
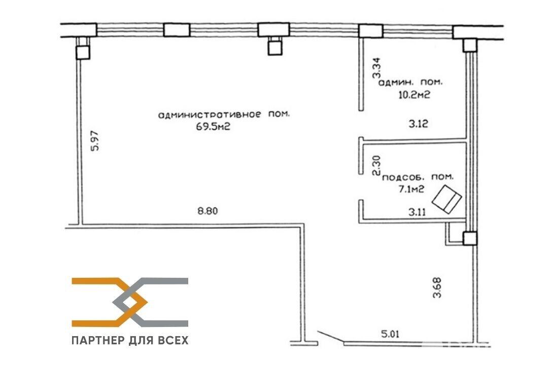
Площадь 86.8 м2
Этаж 6
Удобства
Парковка

Описание

Продается офис (помещение) в центре города, шаговая доступность от метро Площадь Победы, г. Минск,  Ул. Краснозвездная  18б. В бизнес-центре "Прима". Офис площадью 86,8 кв.м расположен на 6-ом этаже бизнес-центра!

В офисе выделены два кабинета для директора и бухгалтера, есть своя миникухня и гардеробная комната. Выполнен новый качественный ремонт, установлены светодиодные светильники, на окнах новые жалюзи.

Офис расположен в центре города, до станции метро "Площадь Победы" 10 минут пешком.

Оживленное место, парковка.

Идеальное место для ведения Вашего бизнеса!

ООО «Партнер для всех», УНП 690665135, лицензия Министерства юстиции Республики Беларусь № 02240/321 от 02.12.2016, договор на оказание риэлтерских услуг № 68/2 от 22.04.2022

Код объекта: 4784 Договор с собственником: 68/2 от 2022-04-22 Опубликовано: 27.04.2022 Обновлено: 26.11.2025
Динамика цен за кв. метрДинамика цен
Похожие объекты
Адрес
Комнат
Площадь
Этаж
Цена за м2
Цена
744.4 м2
4 из 8
2 461 р. за м2

Вы просматривали

314 183 р. 3 620 р. за м2
Первомайский р-н
Офис, 86.8 м2
Минск, ул. Краснозвездная, д. 18/Б
314 183 р.
3 620 р. за м2
Светлана
Пожалуйста, скажите, что нашли этот объект на Domovita.by
+
Фильтр сохранен