Выберите валюту для сайта:
BYN
Подать БЕСПЛАТНО

Купить офис на ул. Платонова, д. 1/Б в Минске, 597600USD, код 9095

664 м2 4 этаж из 7 Партизанский район / Захарова Площадь Победы
2 095 792 р.
1 730 470 р.
Офис
Город Минск
Район Партизанский район
Микрорайон Захарова
Адрес ул. Платонова, д. 1/Б
Метро Площадь Победы
Время до метро пешком 13 мин.
Время до метро на транспорте 7 мин.
Год постройки 2007 г.
Площадь 664 м2
Этаж 4

Описание

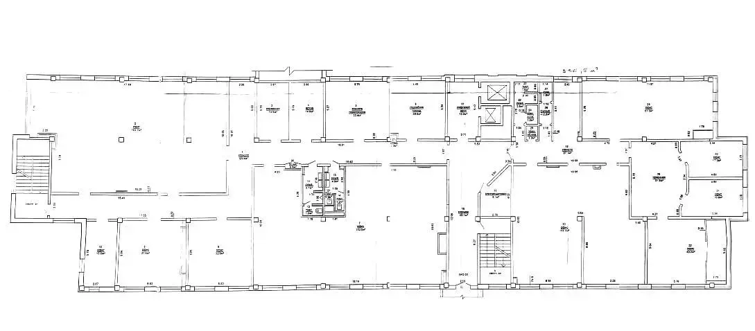
Продается изолированный административный этаж площадью 1010,4 кв. м на 4 этаже БЦ «Виктория Плаза» по ул. Платонова, 1Б, с хорошим ремонтом.

Планировка Open Space и кабинетная. Полезная площадь 757,2 кв. м, все помещения прямоугольной формы, потолки 3 м. Два лифта, в том числе грузовой. Все помещения с хорошим естественным освещением. Есть ресепшен, приемная с кабинетами руководителей.

Возможно рассматривать продажу одной из частей этажа в соотношении 336м2 и 664м2.

Коммуникации:

- зональная система кондиционирования Fujitsu с климат-контролем;

- автономная принудительная приточно-вытяжная вентиляция;

- оптоволокно, разведена локальная сеть;

- электронный карт-доступ;

- вневедомственная охранная сигнализация, видеонаблюдение.

Удобный паркинг с большим количеством мест для авто.

При приобретении   данного изолированного этажа предоставляется определенное количество мест на стоянке бесплатно.

Бизнес-центр «Виктория Плаза» расположен в 15 минутах ходьбы от ст. метро «Площадь Победы», рядом – остановки общественного транспорта. В шаговой доступности – развитая инфраструктура (продуктовые магазины,

Это лучшее вложение для вашего бизнеса.

На период с 7 по 19 августа связываться по мессенджерам whatsp, telegram, viber.

Лицензия: 02240/446 МЮ РБ, 11.07.2022

Код объекта: 9095 Договор с собственником: 487/1 от 2025-07-15 Опубликовано: 22.08.2025 Обновлено: 27.11.2025
Динамика цен за кв. метрДинамика цен
Похожие объекты
Адрес
Комнат
Площадь
Этаж
Цена за м2
Цена
1010.4 м2
4 из 7
2 606 р. за м2
116.9 м2
5 из 7
4 633 р. за м2
116.9 м2
5 из
3 764 р. за м2
116.9 м2
5 из 7
4 344 р. за м2
336 м2
4 из 7
2 606 р. за м2

Вы просматривали

1 730 470 р. 2 606 р. за м2
Партизанский р-н
Офис, 664 м2
Минск, ул. Платонова, д. 1/Б
1 730 470 р.
2 606 р. за м2
Дмитрий
Пожалуйста, скажите, что нашли этот объект на Domovita.by
+
Фильтр сохранен