Выберите валюту для сайта:
BYN
Подать БЕСПЛАТНО

Купить офис на ул. Волгоградская, д. 6 в Минске, 4500000USD, код 9007

4390.4 м2 Первомайский район / Волгоградская Московская
13 030 650 р.
Офис
Город Минск
Район Первомайский район
Микрорайон Волгоградская
Адрес ул. Волгоградская, д. 6
Метро Московская
Время до метро пешком 4 мин.
Время до метро на транспорте 2 мин.
Год постройки 1955 г.
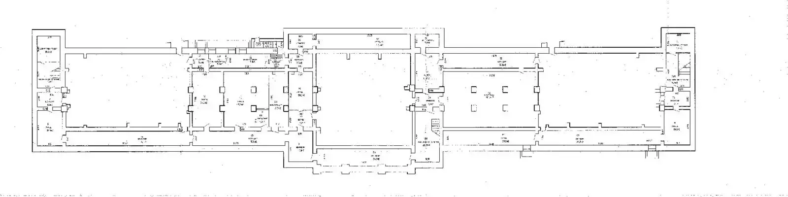
Площадь 4390.4 м2

Описание

Продажа административного здания в престижной локации

Адрес: г. Минск, ул. Волгоградская, 6

Площадь общая: 4 390,4м2

Историческое отдельно стоящее здание с архитектурными решениями в стиле эпохи СССР - конструктивизм, рационализм, ар-деко. Административные помещения расположены на 1, 2, 3 и подвальном этажах трехэтажного кирпичного административного здания 1955 года постройки.

Характеристики:

- Просторные помещения

- Статусная локация

- Удобное расположение

- Близость к центру города

- Актовый зал со сценой

- Высокая инсоляция

- Санузлы

- Освещение, отопление

- Наземная просторная парковка

Удобные подъездные пути – рядом расположены остановки общественного транспорта, ст. метро Московская в 380 м.

В шаговой доступности расположены множество магазинов, кафе, кофеен, рестораны, аптеки, банк, медицинский центр - развитая инфраструктура.

Арендатор не оплачивает услуги риэлтерской организации!

Ваш агент – Андрей Смолка

Больше предложений на САЙТЕ Silvan7800.by

Присоединяйтесь к нам в соцсетях:

Instagram

Facebook

VK

OK

YouTube

Договор № 165/4  от 12.12.2023 по 11.12.2026

ООО «Сильван-Инвест», УНП 192927433, лицензия №02240/383, Министерство юстиции РБ, 24.09.2019.

Код объекта: 9007 Договор с собственником: 165/4 от 2023-12-12 Опубликовано: 31.07.2025 Обновлено: 30.11.2025
Динамика цен за кв. метрДинамика цен
Похожие объекты
Адрес
Комнат
Площадь
Этаж
Цена за м2
Цена
249.4 м2
1 из 1
11 019 р. за м2
3427.1 м2
1 из 11
4 657 р. за м2
309.7 м2
19 из 19
3 086 р. за м2
109.9 м2
2 912 р. за м2
150 м2
18 из 18
3 224 р. за м2

Вы просматривали

4 140 851 р. 828 р. за м2
101 350 р. 202 р. за м2
390 920 р. 3 750 р. за м2
Фрунзенский р-н
5 756 631 р. 3 043 р. за м2
Советский р-н
13 030 650 р. 2 968 р. за м2
Первомайский р-н
Офис, 4390.4 м2
Минск, ул. Волгоградская, д. 6
13 030 650 р.
2 968 р. за м2
Андрей Смолка
Пожалуйста, скажите, что нашли этот объект на Domovita.by
+
Фильтр сохранен