Выберите валюту для сайта:
BYN
Подать БЕСПЛАТНО

Помещение под сферу услуг в Минске, ул. Сурганова, д. 29, код 3642

187.4 м2 1 этаж из 4 Первомайский район / Гикало Академия наук
10 164 р./мес.
9 444 р./мес.
Сервис
Город Минск
Район Первомайский район
Микрорайон Гикало
Адрес ул. Сурганова, д. 29
Метро Академия наук
Время до метро пешком 6 мин.
Время до метро на транспорте 3 мин.
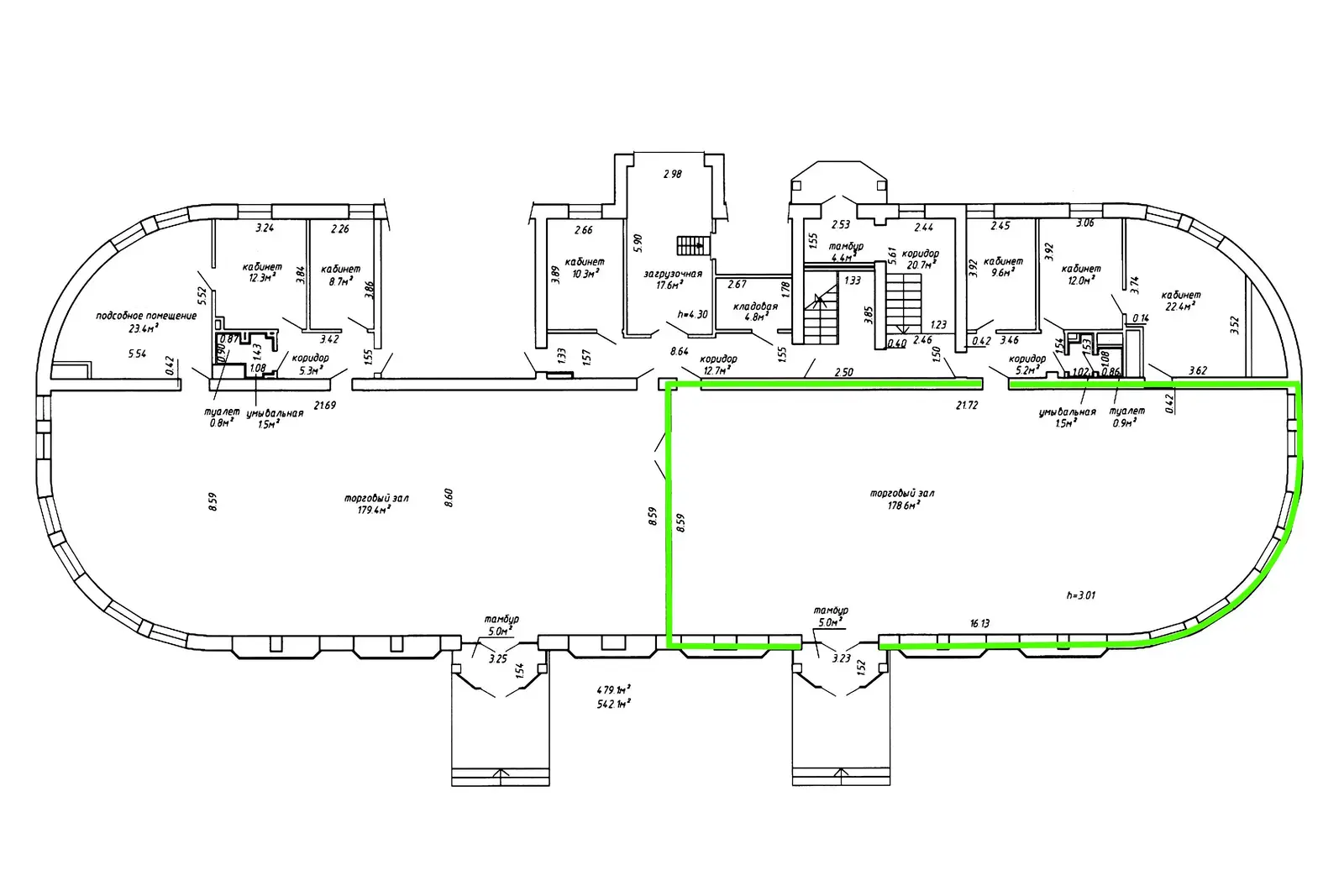
Площадь 187.4 м2
Этаж 1

Описание

Сдается в аренду торговое помещение на 1-м этаже БЦ с доступом 24/7. Отлично подойдёт под бутик, шоурум, а также сферу услуг.
Удобное расположение: помещение расположено прямо около ст. метро Академия Наук и остановки общественного транспорта.

Помещение имеет 2 отдельных входа: внутри БЦ и с улицы.
Проведены коммуникации:
- приточно-вытяжная вентиляция;

- отопление;

- система кондиционирования;

- пожарно-охранная сигнализация;

- оптоволокно.
Высокий пешеходный трафик, богатая инфраструктура: рядом расположены кафе/рестораны, банки, аптеки.

Арендатор не оплачивает услуги агентства.

Код объекта: 3642 Договор с собственником: 111/3А от 2025-12-12 Опубликовано: 13.12.2025 Обновлено: 06.02.2026
0 / 0 / 3
Динамика цен за кв. метрДинамика цен
Похожие объекты
Адрес
Комнат
Площадь
Этаж
Цена за м2
Цена
51.6 м2
1 из 4
30 р. за м2
187.4 м2
50 р. за м2
187.2 м2
1 из 4
50 р. за м2

Вы просматривали

1 543 р./мес. 35 р. за м2
Центральный р-н
9 444 р./мес. 50 р. за м2
Первомайский р-н
Сервис, 187.4 м2
Минск, ул. Сурганова, д. 29
9 444 р./мес.
50 р. за м2
Александр
Пожалуйста, скажите, что нашли этот объект на Domovita.by
+
Фильтр сохранен