Выберите валюту для сайта:
BYN
Подать БЕСПЛАТНО

Аренда торговой точки на ул. Жореса Алфёрова, д. 7 в Минске, 1232EUR, код 965891

61.6 м2 1 этаж из 25 Октябрьский район / Маяковского Аэродромная
4 173 р./мес.
Торговый объект
Город Минск
Район Октябрьский район
Микрорайон Маяковского
Адрес ул. Жореса Алфёрова, д. 7
Метро Аэродромная
Время до метро пешком 9 мин.
Время до метро на транспорте 5 мин.
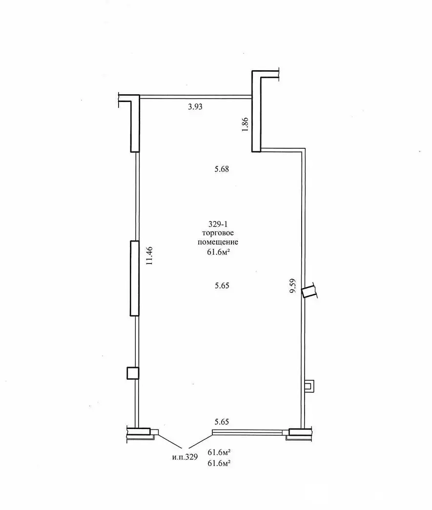
Площадь 61.6 м2
Помещений 1
Этаж 1
Удобства
Круглосуточный доступ

Описание

Сдаётся в аренду торговое помещение на ул. Жореса Алфёрова 7 (дом «Манчестер»), общей площадью 61,6 кв.м. Дом расположен в быстроразвивающимся и плотно населенном районе «Minsk World». Торговое помещение расположено на первом этаже 25-этажного жилого дома, с отельным входом, что обеспечивает ежедневный доступ 24/7. Помещение находится недалеко от основного входа в жилой дом. Высокие потолки, панорамные окна. Черновая отделка. В шаговой доступности остановки общественного транспорта, большой пешеходный и автомобильный трафик, в 2024 году открытие станции метро «Аэродромная».   В помещение заведено отопление, водоснабжение, канализация и электроэнергия. Есть возможность адаптировать помещение под свой бизнес. Предлагаемая площадь подойдет под различные сферы услуг: магазин, кофейни, услуги и другие виды бизнеса. Арендатор не оплачивает услуги агентства. Ещё больше объектов недвижимости в нашем Telegram-канале @urielt_minsk
Код объекта: 965891 Договор с собственником: #46/2А от 29.10.2024 Опубликовано: 31.10.2024 Обновлено: 07.11.2025
0 / 0 / 2
Динамика цен за кв. метрДинамика цен
Похожие объекты
Адрес
Комнат
Площадь
Этаж
Цена за м2
Цена
61.6 м2
1 из 1
68 р. за м2

Вы просматривали

4 956 р./мес. 84 р. за м2
Октябрьский р-н
22 717 р./мес. 41 р. за м2
Центральный р-н
2 439 р./мес. 34 р. за м2
Фрунзенский р-н
4 173 р./мес. 68 р. за м2
Октябрьский р-н
Торговый объект, 61.6 м2
Минск, ул. Жореса Алфёрова, д. 7
4 173 р./мес.
68 р. за м2
Геннадий
Пожалуйста, скажите, что нашли этот объект на Domovita.by
+
Фильтр сохранен