Выберите валюту для сайта:
BYN
Подать БЕСПЛАТНО

Продажа торговой точки на Игуменский тр-т, д. 16 в Минске, 80000USD, код 996252

119.5 м2 1 этаж из 11 Ленинский район / Лошица
279 145 р.
231 656 р.
Торговый объект
Город Минск
Район Ленинский район
Микрорайон Лошица
Адрес Игуменский тр-т, д. 16
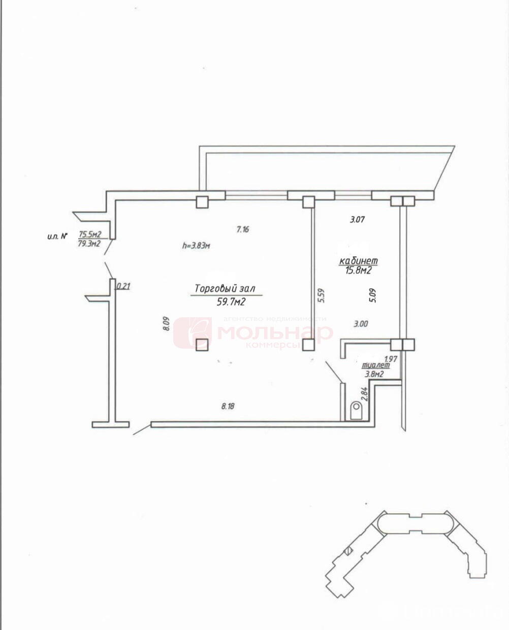
Площадь 119.5 м2
Этаж 1
Удобства
Отдельный вход

Описание

Продажа торгового помещения общей площадью 79.3м2 и складского помещения общей площадью 40.2м2 по Игуменскому тракту, дом 16. Цокольный этаж жилого дома, отдельный вход. Нормальный ремонт, приборы учета, санузел.  Рядом остановка общественного транспорта, торговые объекты. Оживленное место, парковка, подъездные пути. С арендатором. Цена продажи 80000$, без НДС. Покупатель не оплачивает услуги риэлтерской организации.
УП "Мольнар", УНП 101107535, лицензия №02240/11 от 17.02.2005г.,
договор на оказание риэлтерских услуг №183/1

Код объекта: 996252 Договор с собственником: 183/1 Опубликовано: 24.04.2024 Обновлено: 08.10.2025
0 / 0 / 51
Динамика цен за кв. метрДинамика цен
Похожие объекты
Адрес
Комнат
Площадь
Этаж
Цена за м2
Цена
227 м2
2 896 р. за м2
119.5 м2
2 395 р. за м2
127 м2
1 из 17
4 216 р. за м2
93.1 м2
1 491 р. за м2

Вы просматривали

353 505 р. 4 091 р. за м2
Октябрьский р-н
257 138 р. 6 950 р. за м2
Первомайский р-н
547 114 р. 6 805 р. за м2
Центральный р-н
535 705 р. 7 708 р. за м2
Центральный р-н
4 788 156 р. 4 923 р. за м2
Центральный р-н
289 570 р. 6 058 р. за м2
Центральный р-н
Торговый объект, 119.5 м2
Минск, Игуменский тр-т, д. 16
231 656 р.
1 937 р. за м2
Александра
Пожалуйста, скажите, что нашли этот объект на Domovita.by
+
Фильтр сохранен