Выберите валюту для сайта:
BYN
Подать БЕСПЛАТНО

Продажа торговой точки на Игуменский тр-т, д. 16 в Минске, 98820USD, код 997724

119.5 м2 Ленинский район / Лошица
287 438 р.
Торговый объект
Город Минск
Район Ленинский район
Микрорайон Лошица
Адрес Игуменский тр-т, д. 16
Год постройки 2010 г.
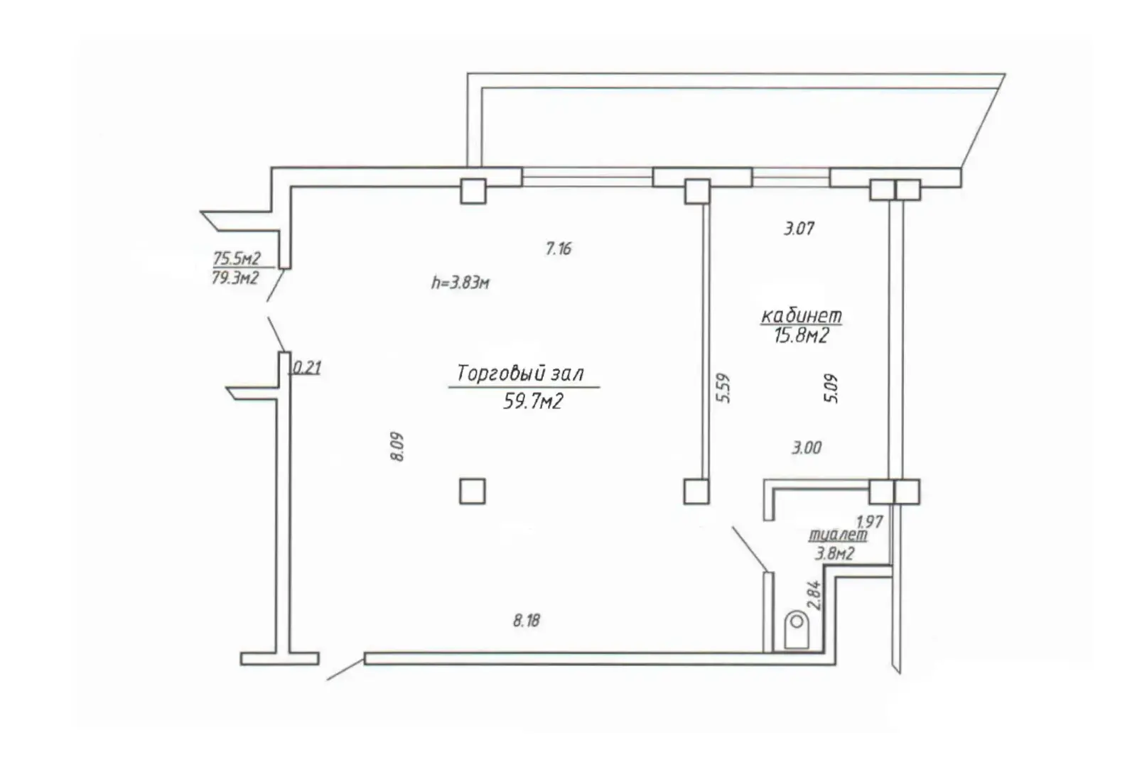
Площадь 119.5 м2

Описание

Продаётся торговое помещение со складом на цокольном этаже жилого дома.

В помещении выполнен хороший ремонт. Проведены коммуникации: водоснабжение, отопление, пожарная сигнализация.
Преимущества:
- высокий трафик за счёт плотной жилой застройки и обширной линейки стрит ритэйла;

- развитая инфраструктура: рядом с помещением остановка общественного транспорта с более чем 10-ю маршрутами;

- просторный паркинг у помещения;

- доступ 24/7;

- высокие потолки.

Помещение (79.3 кв.м.) продаётся вместе с небольшим складом (40.2 кв.м.) и отлично подойдёт не только под свой бизнес (торговая точка, сфера услуг), но и арендный бизнес.

В помещении есть действующий арендатор.


Покупатель не оплачивает услуги агентства!

Код объекта: 997724 Договор с собственником: 2464/2 от 2024-10-31 Опубликовано: 30.04.2025 Обновлено: 04.12.2025
0 / 0 / 26
Динамика цен за кв. метрДинамика цен
Похожие объекты
Адрес
Комнат
Площадь
Этаж
Цена за м2
Цена
119.5 м2
1 из 11
1 946 р. за м2
227 м2
2 909 р. за м2
127 м2
1 из 17
4 235 р. за м2
93.1 м2
1 498 р. за м2

Вы просматривали

23 270 р. 1 551 р. за м2
Московский р-н
46 539 р. 1 797 р. за м2
Московский р-н
785 349 р. 2 701 р. за м2
Ленинский р-н
450 849 р. 6 915 р. за м2
Ленинский р-н
436 305 р. 6 094 р. за м2
Центральный р-н
514 549 р. 8 435 р. за м2
Ленинский р-н
698 088 р. 8 748 р. за м2
Октябрьский р-н
Торговый объект, 119.5 м2
Минск, Игуменский тр-т, д. 16
287 438 р.
2 405 р. за м2
Александр Крюков
Пожалуйста, скажите, что нашли этот объект на Domovita.by
+
Фильтр сохранен