Выберите валюту для сайта:
BYN
Подать БЕСПЛАТНО

Продажа торгового помещения на Логойский тр-т, д. 1/4 в Минске, 250000USD, код 997298

221 м2 1 этаж из 9 Советский район / Беды
716 100 р.
Торговый объект
Город Минск
Район Советский район
Микрорайон Беды
Адрес Логойский тр-т, д. 1/4
Год постройки 1981 г.
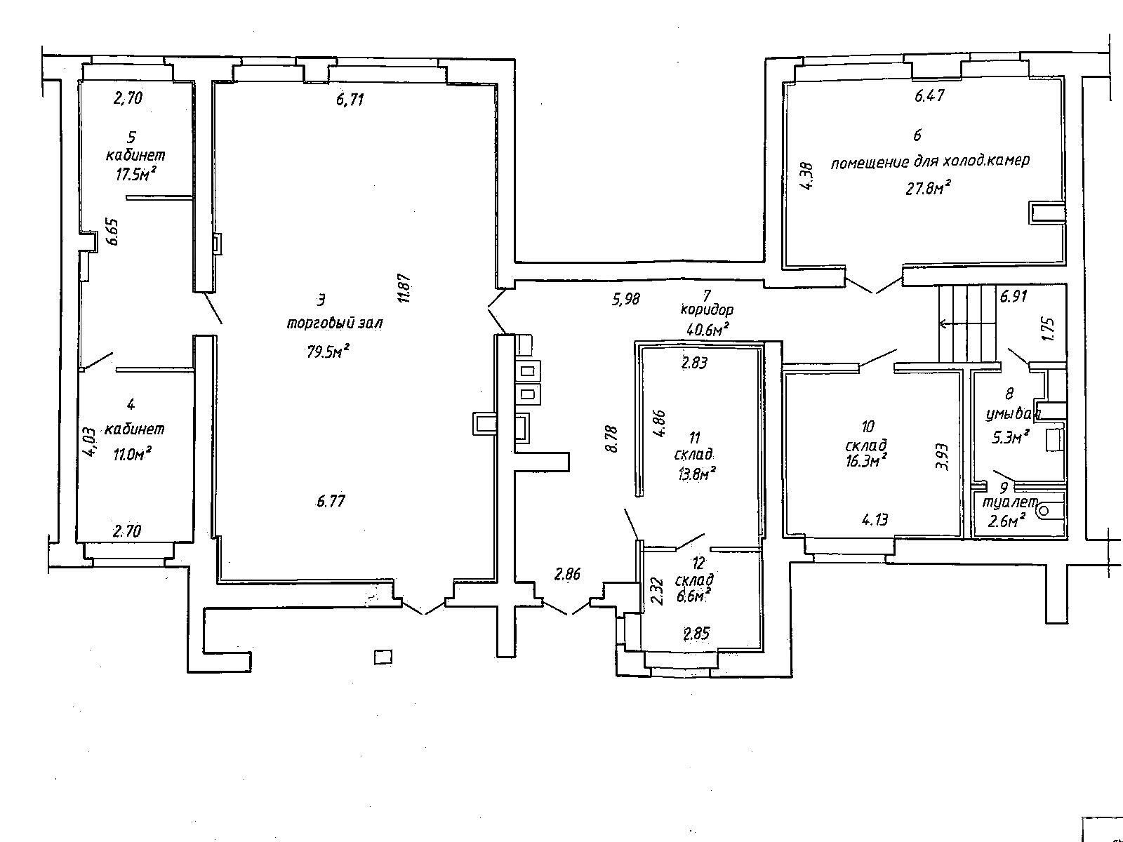
Площадь 221 м2
Этаж 1

Описание

Первый этаж, удобный подъезд для разгрузки, торговый зал 80кв/м, два склада, два кабинета, помещение под холодильные камеры 28кв/м.

Код объекта: 997298 Договор с собственником: 1600 от 2024-12-16 Опубликовано: 09.01.2025 Обновлено: 18.01.2026
0 / 0 / 9
Динамика цен за кв. метрДинамика цен
Похожие объекты
Адрес
Комнат
Площадь
Этаж
Цена за м2
Цена
1723.9 м2
4 153 р. за м2

Вы просматривали

Торговый объект, 221 м2
Минск, Логойский тр-т, д. 1/4
716 100 р.
3 237 р. за м2
Вячеслав
Пожалуйста, скажите, что нашли этот объект на Domovita.by
+
Фильтр сохранен