Подать БЕСПЛАТНО

ОБЪЕКТ В АРХИВЕ

Продажа 3-комнатной квартиры в Минске, ул. Петра Мстиславца, д. 10

г. Минск, ул. Петра Мстиславца, 10
Показать на карте
Первомайский район
Восток
6 мин
432 394 р.
Цена за м2: 7 918 р.
Код объекта: 1176343
3 комнаты
57.6 м2
6 этаж из 13
Обновлено: 21.06.2025
432 394 р.
Цена за м2: 7 918 р.
Предложить свою цену

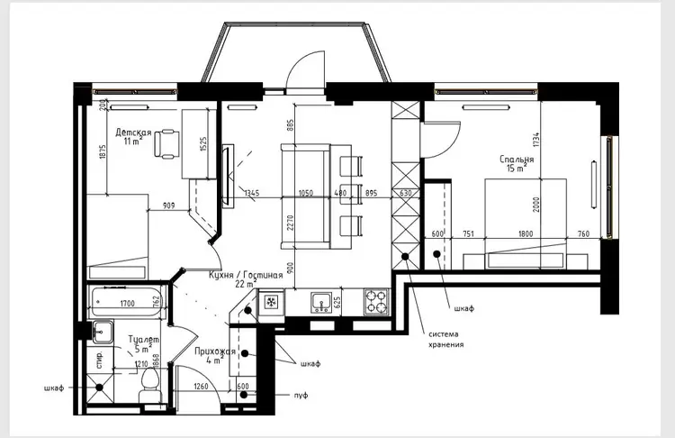
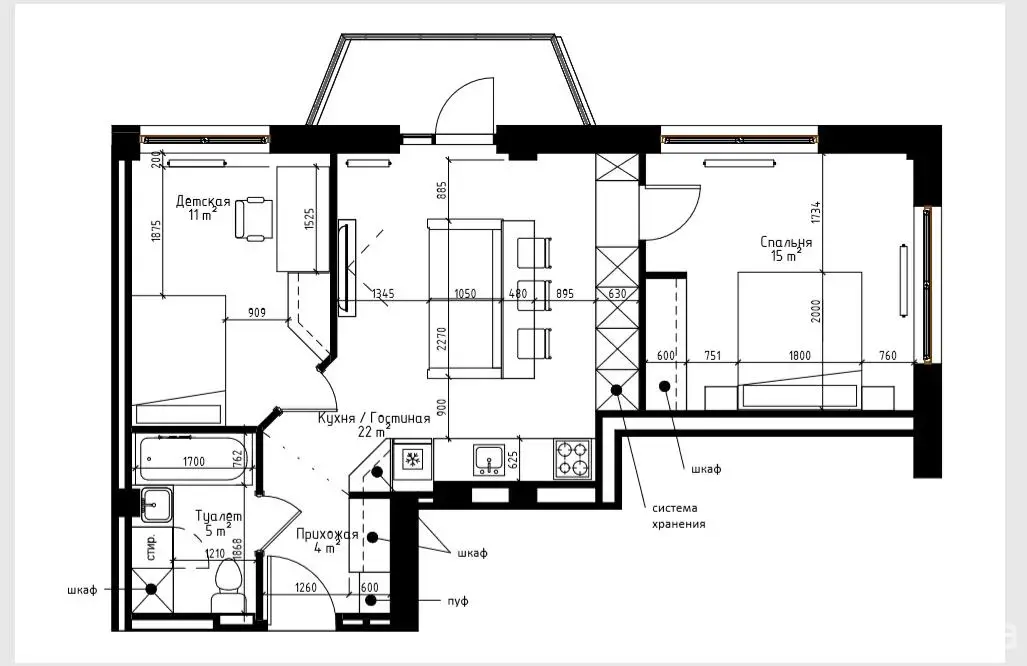
О квартире

Площадь
57.6 м2
общая
50 м2
жилая
Балкон
Балкон

О доме

Этаж
6 из 13
Год постройки
2019

Описание

Горячее предложение!!!  В ЖК «Маяк Минска»

ЖК «Маяк Минска» - престижный район с квартирами VIP-класса, расположенные напротив национальной Библиотеки

 

Дом сдан!!! Готов к просмотру

· Дом 2019 года постройки;

· Расположен в центре ЖК «Маяк-Минска», рядом пешая улица «Бульвар Пикассо»;

· Квартиры свободной планировки с большими террасами;

· Каркасно-блочный дом;

· Скоростные малошумные лифты ;

· Большие панорамные окна в пол с шикарным видом из окна;

· Высота потолков 2,7 м;

· На первом этаже дома современный холл, место для консьержа.

В даноое время в квортире проходит ремонт сделана канализация, проведено электричество, возведены межкомнатные перегородки.

Инфраструктура:

· ЖК «Маяк-Минска» расположен напротив Национальной библиотеки    вдоль проспекта Независимости;

· В 3-х минутах ходьбы ТРЦ «Dana Mall»;

· В пешей доступности расположена станция метро «Восток»;

· 10 минут до центра города;

· Все необходимые услуги и магазины прямо на территории комплекса и возле него: детские сады и школа, магазины и бутики, салоны красоты и рестораны, фитнес-центры и тренажёрные залы, бизнес центр;

· Рядом зелёная зона – чистый воздух и приятные прогулки по тихим аллеям вдоль каналов;

· В шаговой доступности от нового комплекса набережная река Свислочи.

Квартира напрямую от застройщика!  Помогу продать Вашу квартиру для покупки этой! Приезжайте на просмотр!

 

ООО «ЭТАЖИ юнайтед»

УНП: 193673318

Договор 860 /1 от 17.06.2024

Лицензия на оказание риэлтерских услуг №02240/460 МЮ РБ от 03.04.2023

 

 

 

 

СергейАгент
2 года на сайте
Условия сделки:продажа
Показать почту
Пожаловаться на объявление
Агентство недвижимости
ООО «ЭТАЖИ юнайтед»

Местоположение

г. Минск, ул. Петра Мстиславца, 10
Первомайский район
Опубликовано: 21.06.2025

Возможно, вам будет интересно

Похожие объекты

На этой улицеВ этом домеВ этом районе
666 360 р.
Цена за м2: 6 534 р.
Первомайский район, ул. Петра Мстиславца
Восток
5 мин
4-комн. кв
135.9
100
20 м2
3 этаж из 25
744 801 р.
Цена за м2: 5 193 р.
Первомайский район, ул. Петра Мстиславца
Восток
5 мин
4-комн. кв
122.9
100
20 м2
3 этаж из 20
2 102 736 р.
Цена за м2: 16 822 р.
Первомайский район, ул. Петра Мстиславца
Восток
7 мин
4 мин
3-комн. кв
125.7
116.1
м2
10 этаж из 10
852 941 р.
Цена за м2: 9 974 р.
Первомайский район, ул. Петра Мстиславца
Восток
5 мин
3-комн. кв
77.2
62.5
м2
5 этаж из 13
1 035 849 р.
Цена за м2: 5 113 р.
Первомайский район, ул. Петра Мстиславца
Восток
5 мин
4-комн. кв
202.6
м2
3 этаж из 13
2 301 163 р.
Цена за м2: 17 964 р.
Первомайский район, ул. Петра Мстиславца
Восток
5 мин
4-комн. кв
128.1
94.7
м2
8 этаж из 12
666 360 р.
Цена за м2: 6 534 р.
Первомайский район, ул. Петра Мстиславца
Восток
5 мин
4-комн. кв
135.9
100
20 м2
3 этаж из 25
744 801 р.
Цена за м2: 5 193 р.
Первомайский район, ул. Петра Мстиславца
Восток
5 мин
4-комн. кв
122.9
100
20 м2
3 этаж из 20
888 480 р.
Цена за м2: 5 690 р.
Партизанский район, ул. Парниковая
Восток
24 мин
13 мин
4-комн. кв
190.5
129.2
11.8 м2
3 этаж из 4