О квартире
О доме
Описание
Представьте себе жизнь в просторной и элегантной четырехкомнатной квартире, где каждый день начинается с великолепного вида на Парк Писателей, водный канал и на Национальную библиотеку! Эта роскошная квартира в престижном жилом комплексе "Маяк Минска" создана для тех, кто ценит комфорт, стиль и высокое качество жизни.
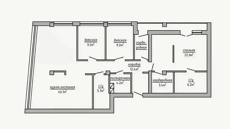
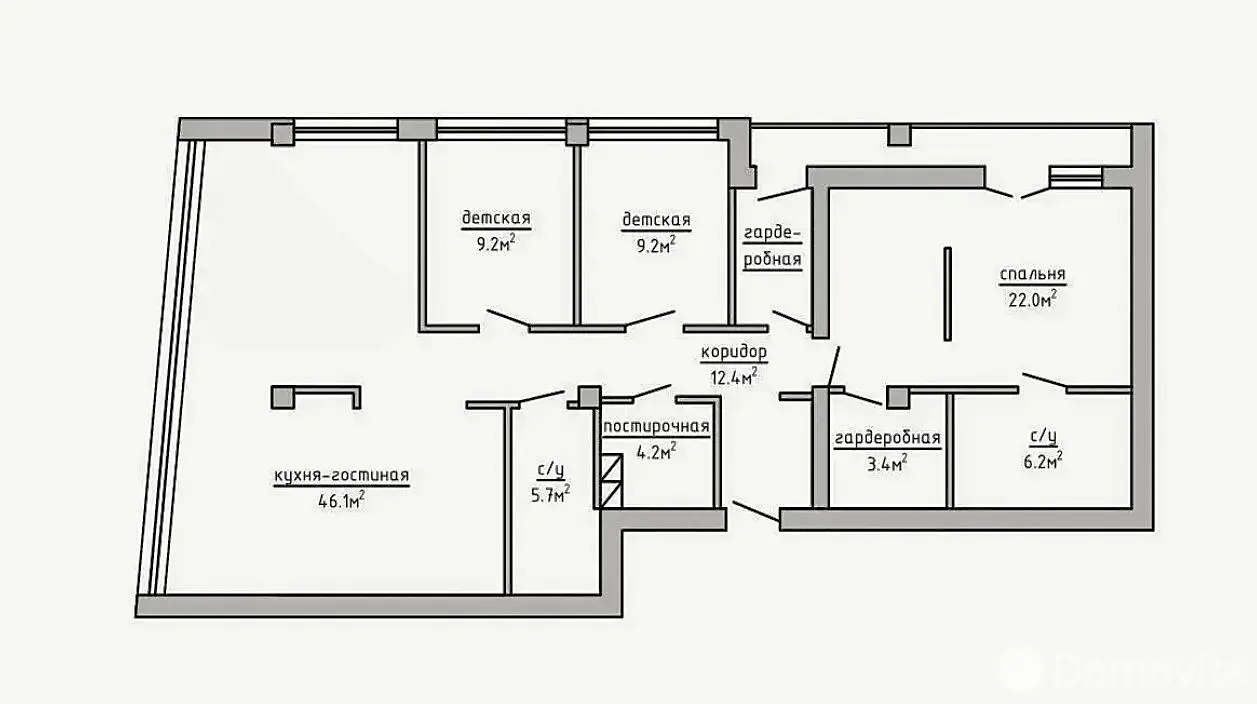
Квартира площадью 128.1 кв.м. по СНБ поражает своей функциональностью и безупречным планировочным решением. Вас ждут 3 изолированные комнаты ( а именно просторная мастер спальня и две детские) , светлая и просторная кухня-гостиная, два санузла, две гардеробные и удобная постирочная.
В отделке квартиры использованы только высококачественные материалы: паркетная доска и керамогранит на полу, шпонированные настенные панели и двери от "Лацио". Мебель выполнена под заказ по индивидуальному дизайн-проекту, а столешница и покрытие островка в кухне из стильного керамогранита.
Кухня оснащена современной техникой от ведущих производителей: духовой шкаф, варочная панель и микроволновая печь Siemens, посудомоечная машина Bosch, холодильник и морозильная камера Liebherr. В ванных комнатах установлена сантехника Hansgrohe и Villeroy & Boch, а также керамогранит премиум-класса.
Для вашего удобства есть возможность приобрести три крытых отапливаемых паркинга с зарядными устройствами для электромобилей ( мощностью 7 Квт) для электромобилей прямо под домом, что избавит вас от хлопот с поиском места для автомобиля.
Жилой комплекс "Маяк Минска" предлагает все необходимое для комфортной и насыщенной жизни: в шаговой доступности расположены уютные кафе и рестораны, разнообразные магазины, огромный ТРЦ «Dana Mall», современный кинотеатр, медицинские центры, банки, аптеки, салоны красоты, а также школы и детские сады.
Отличное транспортное сообщение позволит вам быстро добраться в любую точку города: станция метро «Восток» находится в нескольких минутах ходьбы, а удобный выезд на МКАД обеспечит комфорт для автовладельцев. В непосредственной близости от дома расположен живописный парк Писателей с водным каналом – идеальное место для пеших прогулок и занятий спортом на свежем воздухе.
Не упустите уникальную возможность стать обладателем этого изысканного жилья! Позвоните мне прямо сейчас, чтобы записаться на просмотр, ведь завтра эта квартира может стать чьей-то мечтой!
ООО «ЭТАЖИ юнайтед»
УНП: 193673318
Договор 2720/1 от 12.12.2025
Лицензия на оказание риэлтерских услуг №02240/460 МЮ РБ от 03.04.2023








































