Выберите валюту для сайта:
BYN
Подать БЕСПЛАТНО
Объект в архиве
К результатам поиска

Аренда офиса на ул. Нарочанская, д. 11 в Минске, 23898BYN, код 16091

929.9 м2 1 этаж из 2 Центральный район / Веснянка
Объект в архиве
Уважаемые пользователи, данное объявление больше не актуально. Поэтому мы убрали все контакты продавца.
Продолжить поиск
Офис
Город Минск
Район Центральный район
Микрорайон Веснянка
Адрес ул. Нарочанская, д. 11
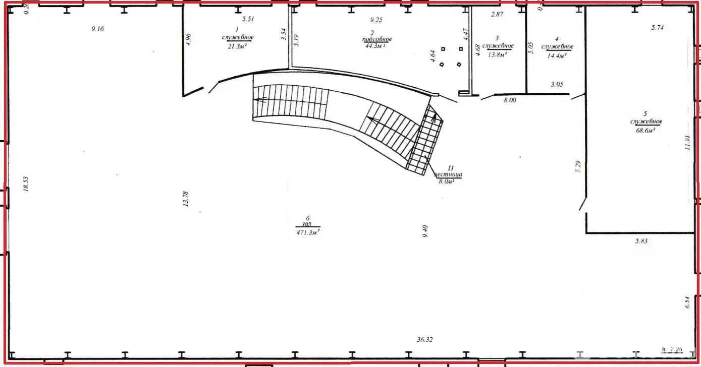
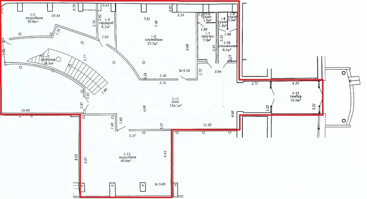
Площадь 929.9 м2
Этаж 1

Описание

Предлагаем в аренду помещения  в Бизнес-центре на Нарочанской 11!

 

Офис Open-space формата общей площадью – 929,9 м2 располагается по адресу, ул. Нарочанская, 11.

В шаговой доступности располагаются: ТЦ «Арена Сити», «Минск Арена».

На 1-м этаже Бизнес-центра пункт охраны, по периметру здания видеонаблюдение. Арендодатель предоставляет бесплатные охраняемые парковочные места.

Локация с отличным транспортным сообщением, удобные подъездные пути и большая парковка вокруг здания. В шаговой доступности находятся остановки общественного транспорта.

 

Конфигурация офиса:

1-й этаж – 340,5 м2: зона ресепшена, кухня, сан. узел, гардероб, переговорная (кабинет).

2-й этаж – 589,4 м2: Open-space, 6 отделенных стеклянными перегородками помещений.

 

•  Отдельный вход;

•  Отличный ремонт;

•  Open-space формат;

•  Естественное освещение;

•  Высокие потолки (7 метров);

•  Система кондиционирования;

•  Вентиляционная система;

•  Доступ в помещение 24/7;

•  Подъездные пути/парковка.

 

Коммуникации по Нарочанская 11:

Приточно-вытяжная вентиляция; Система кондиционирования воздуха; Круглосуточная система охраны и видеонаблюдения всего здания; Оптоволокно от нескольких интернет-провайдеров, локальная сеть.

 

Арендатор не платит комиссию агентству!

Готовы рассмотреть Ваши предложения!

Звоните!

Код объекта: 16091 Договор с собственником: 211/2а от 2024-06-28 Опубликовано: 22.11.2025 Обновлено: 20.02.2026
Динамика цен за кв. метрДинамика цен
Похожие объекты
Адрес
Комнат
Площадь
Этаж
Цена за м2
Цена
930 м2
1 из 5
26 р. за м2
955.9 м2
1 из 5
25 р. за м2
930 м2
2 из 3
23 р. за м2
929.9 м2
1 из 2
25 р. за м2

Вы просматривали

616 р./мес. 34 р. за м2
Октябрьский р-н
+
Фильтр сохранен