Выберите валюту для сайта:
BYN
Подать БЕСПЛАТНО

Купить офис на пер. Франциска Скорины 1-й, д. 30 в Минске, 700000USD, код 9692

807 м2 Советский район / Беды
2 026 990 р.
Офис
Город Минск
Район Советский район
Микрорайон Беды
Адрес пер. Франциска Скорины 1-й, д. 30
Год постройки 2000 г.
Площадь 807 м2

Описание

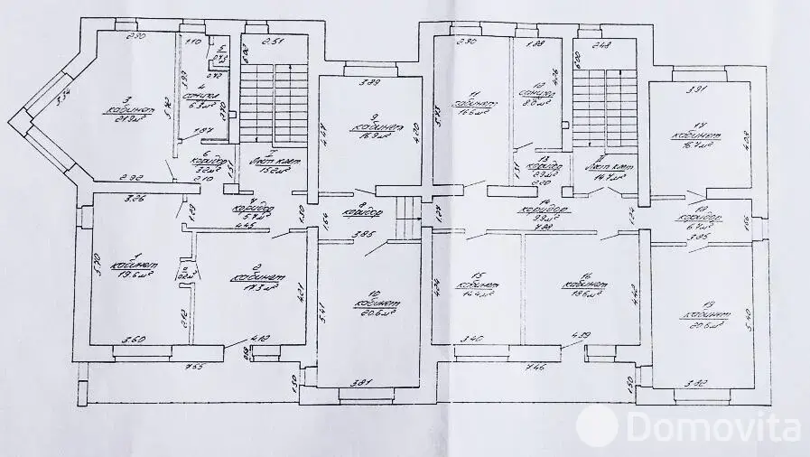
Отдельно стоящее административное кирпичное 2-х этажное здание c двумя отдельными входами S=807м2. Кабинетная разбивка рациональное размещение всех кабинетов относительно общей площади( схема поэтажных планов), оптоволокно во всех кабинетах, имеется серверная, приточно-вытяжная вентиляция, часть кабинетов оборудованы кондиционерами, установлено видеонаблюдение по периметру дома в здание и на коридорах, своя парковка на 12 машин, есть складские помещения и площади для архива, автономная котельная на газу позволяет регулировать коммунальные расходы в зимний период, доступ 24/7 дней в неделю. Во всех кабинетах произведён ремонт, все инженерные сети исправны.

  Удобное транспортное сообщение, рядом остановки общественного транспорта, стартовали работы по строительству метро (станция будет в шаговой доступности).

Код объекта: 9692 Договор с собственником: 531/1 от 2025-06-13 Опубликовано: 04.12.2025 Обновлено: 04.12.2025
Динамика цен за кв. метрДинамика цен
Похожие объекты
Адрес
Комнат
Площадь
Этаж
Цена за м2
Цена
1-комнатная
72.3 м2
1 из 1
4 199 р. за м2
29.02 м2
6 из 6
3 492 р. за м2
47.7 м2
2 из 3
3 369 р. за м2
15-комнатная
1227 м2
1 из 2
1 462 р. за м2
3345.9 м2
1 911 р. за м2

Вы просматривали

2 026 990 р. 2 511 р. за м2
Советский р-н
2 107 664 р. 6 081 р. за м2
Центральный р-н
743 908 р. 10 537 р. за м2
Центральный р-н
270 024 р. 3 620 р. за м2
Фрунзенский р-н
322 147 р. 3 620 р. за м2
Фрунзенский р-н
2 741 649 р. 3 475 р. за м2
Фрунзенский р-н
98 683 р. 3 246 р. за м2
Первомайский р-н
340 338 р. 3 720 р. за м2
Октябрьский р-н
188 986 р. 3 889 р. за м2
Октябрьский р-н
758 673 р. 3 041 р. за м2
Московский р-н
Офис, 807 м2
Минск, пер. Франциска Скорины 1-й, д. 30
2 026 990 р.
2 511 р. за м2
Денис
Пожалуйста, скажите, что нашли этот объект на Domovita.by
+
Фильтр сохранен