Выберите валюту для сайта:
BYN
Подать БЕСПЛАТНО

Купить помещение под сферу услуг в Минске, ул. Жилуновича, д. 2

350.3 м2 Заводской район / Дражня Партизанская
1 196 168 р.
Сервис
Город Минск
Район Заводской район
Микрорайон Дражня
Адрес ул. Жилуновича, д. 2
Метро Партизанская
Время до метро пешком 16 мин.
Время до метро на транспорте 9 мин.
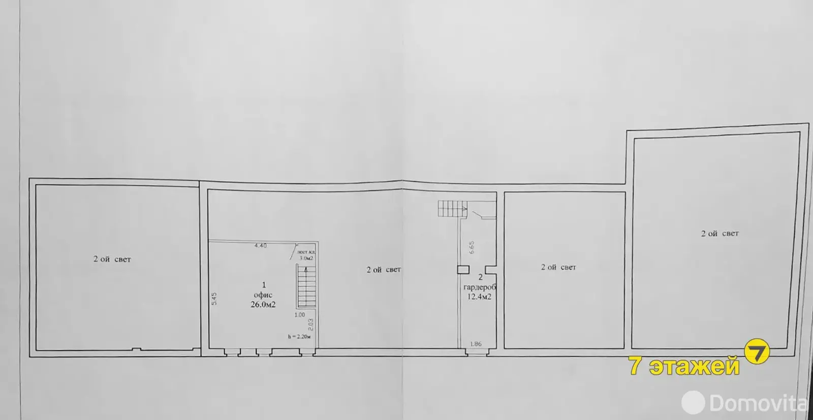
Площадь 350.3 м2
Тип объектаСТО

Описание

Продается здание станции технического обслуживания (СТО) под разные виды услуг и отличное ведение своего прибыльного бизнеса по адресу Жилуновича 2. Общая площадь 350,3 кв.м. высота потолков 4.20. Собственное отопление на отработанном масле (около 100 BYN в месяц). Коммунальные (вода и электроэнергия) оплачиваются по тарифам юр. лиц. В данный момент работают постоянные арендаторы (7 евро за 1 м2). Продает ИП без НДС. Не высокий налог на недвижимость и землю. Оборудование полностью арендаторов. Имеется отдельное помещение с ямой. Удобный выезд к центру, а также на МКАД. Полное юридическое сопровождение сделки гарантируем! Торг!
Код объекта: 1458 Договор с собственником: 110/3 от 21.12.2020 Опубликовано: 21.12.2020 Обновлено: 30.03.2026
2 / 5 / 1584
Динамика цен за кв. метрДинамика цен

Вы просматривали

1 196 168 р. 3 415 р. за м2
Заводской р-н
Сервис, 350.3 м2
Минск, ул. Жилуновича, д. 2
1 196 168 р.
3 415 р. за м2
Агент
Пожалуйста, скажите, что нашли этот объект на Domovita.by
+
Фильтр сохранен