Выберите валюту для сайта:
BYN
Подать БЕСПЛАТНО

Продажа торговой точки на пр-т Газеты Правда, д. 20А/1 в Минске, 138380USD, код 997563

125.8 м2 1 этаж из 1 Московский район / Юго-Запад Петровщина
400 707 р.
Торговый объект
Город Минск
Район Московский район
Микрорайон Юго-Запад
Адрес пр-т Газеты Правда, д. 20А/1
Метро Петровщина
Время до метро пешком 5 мин.
Время до метро на транспорте 3 мин.
Площадь 125.8 м2
Этаж 1
Удобства
Отдельный вход

Описание

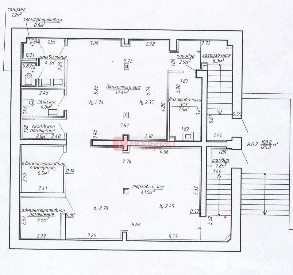
Продажа многофункционального помещения по адресу ул. Газеты правда 20/1А, площадью 125.8 м2.
Это просторное и многофункциональное помещение на цокольном этаже два отдельных входа. Идеально подходит для кафе, бара, ресторана, караоке-бара, сферы развлечений, сервисного центра, магазина, сферы услуг,  и т.д.

В настоящее время в одной части размещен бар, который уже арендует это помещение более 5 лет (12 $/м2) , во второй части располагается кейтеринг. Наличие всех необходимых коммуникаций, включая систему кондиционирования, приточно-вытяжную вентиляцию, пожарно-охранную сигнализацию, санузлы. Удобное расположение рядом с метро Петровщина ,остановки общественного транспорта. Большая проходимость, плотная заселенность района.

Ставка продажи 1100$/ м2
Покупатель не оплачивает услугу риэлтерской организации.

Код объекта: 997563 Договор с собственником: 132/1 Опубликовано: 07.03.2025 Обновлено: 07.03.2025
0 / 2 / 34
Динамика цен за кв. метрДинамика цен
Похожие объекты
Адрес
Комнат
Площадь
Этаж
Цена за м2
Цена
2788.9 м2
4 054 р. за м2
86 м2
1 из 18
7 094 р. за м2
86 м2
1 из 1
7 094 р. за м2
Торговый объект, 125.8 м2
Минск, пр-т Газеты Правда, д. 20А/1
400 707 р.
3 185 р. за м2
Александра
Пожалуйста, скажите, что нашли этот объект на Domovita.by
+
Фильтр сохранен